泵阀接合防漏技术在仓储物流液体罐体中的应用与优化

打开文本图片集
Abstract: Inaccordance with relevant national andsectoral standards,including GB18564.1-20l9,Road tanker for dangerous liquid goods transportation—Partl:Technicalrequirementsofatmosphericpressuremetaltank,GB50160- 2018,Standard forfirepreventiondesignofpetrochemicalenterprises,andJB/4732,SteelPressure VesselsDesign by Analysis, this paper presents a systematic investigation into the application of leak-proof technologies for pumpvalve joints inliquid storage tanks,and proposes corrsponding optimization strategies,tostrengthenleak-proofsafety management during warehousing and logistics operations,enhance the sealing performanceof pump-valve joints,and effectively mitigate leakage risks associated with thestorage and transportation of liquids under high-pressure,hightemperature,and highly corrosive conditions.
Keywords: pump-valve joint; leak-proof technology; warehousing and logistics
0 引言
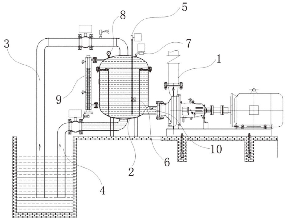
仓储物流中液体的储存与运输是一项复杂且高风险的过程,尤其是在处理化学液体和其他易挥发的液体时,如何保证液体的无泄漏储存尤为重要。(剩余4879字)