编织碳纤维复合材料车载箱体结构强度仿真及试验验证

打开文本图片集
关键词:编织碳纤维复合材料;动车组车载箱体;力学性能测试;瞬态动力学仿真分析;台架冲击试验中图分类号:U270.1 文献标志码:B doi:10.20213/j.cnki. tdcl.2024.11.12.01
Abstract: Taking the braided carbon fiber composite box of a certain type of EMU as the research object, the structural strength and safety of carbon fiber composite structural parts under impact load are explored. Firstly,the accurate material parameters of the boxes are obtained through the mechanical properties test. Then,the finite element transient dynamic simulation analysis of the box structure is caried out according to the impact excitation (longitudinal 5g ,transverse 3g and vertical 3g )specified in GB/T 21563—2018,and the Tsai- wu failure criterion and maximum strain criterion are used to evaluate the failure of carbon fiber. The finite element calculation results indicate that the braided carbon fiber composite onboard boxes meet the design requirements. Finally,the bench impact test was carried out on the braided carbon fiber composite onboard box sample,and the strain in the dangerous area of the box was measured by strain gauge and strain rosete. Through the comparison between the test results and the simulation results,it can be seen that the strain measurementvalues of thebox are in goodagreement with thefinite elementcalculation results,and theeroris within a reasonable range,which verifies the validity and reliability of the simulation model and calculation method.
Key words:braided carbon fiber composite material;EMU onboard box;mechanical property testing; transient dynamics simulation analysis;bench impact test
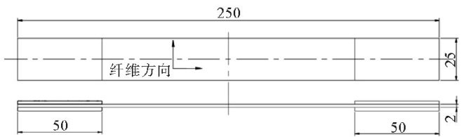
碳纤维复合材料与传统的金属材料相比,具有更高的比强度和比模量,在抗疲劳和耐腐蚀性能方面更具优势[1-2],近年来在实际工程中的应用也越来越广泛[3-5]。(剩余6966字)