注册帐号丨忘记密码?
1.点击网站首页右上角的“充值”按钮可以为您的帐号充值
2.可选择不同档位的充值金额,充值后按篇按本计费
3.充值成功后即可购买网站上的任意文章或杂志的电子版
4.购买后文章、杂志可在个人中心的订阅/零买找到
5.登陆后可阅读免费专区的精彩内容
打开文本图片集
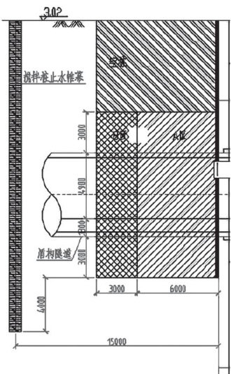
0 引言
盾构施工在地铁区间建设中应用广泛[1],可适应众多复杂的环境,安全性能较高[2]。但在地铁区间盾构施工中,盾构接收存在较大的安全风险,如处理不当可能会引发较严重后果及不良社会影响[3]。尤其,在全断面承压水易液化粉砂地层接收中,因地层含水量大、土体可塑性差、稳定性差,给盾构到达带来了难题[4]。(剩余4362字)
登录龙源期刊网
购买文章
全断面富水砂层盾构机安全接收技术应用研究
文章价格:4.00元
当前余额:100.00
阅读
您目前是文章会员,阅读数共:0篇
剩余阅读数:0篇
阅读有效期:0001/1/1 0:00:00