天津建设科技

天津建设科技

2025年05期
  • 收藏
收藏成功
微博 空间 微信
《天津建设科技》期刊创刊于1990年,由天津市交通运输委员会主管,天津市市政工程设计研究院、天津市市政工程研究院共同主办...     展开

类型

双月刊

类别

定价
促销信息
全年订阅更优惠!
¥15.00 ¥9.00
目录

交通工程

港口建成区核心港区内交通改善优化研究
【摘要】:针对港口建成区核心港区内部交通与港口远期规划吞吐量的适应性问题,以天津港为例,分析现状交通问题,从交通秩序管理、运输组织智能化、路网结构三方面提出交通改善的具体措施,通过建立交通仿真模型和路网整体饱和度评价指标,验证方案的实施效果...
曹妃甸港口群集疏运通道建设方案研究
【摘要】:为了构建曹妃甸工业区高效的综合交通运输体系,针对其港口群集疏运需求与南部东西向货运压力,从西通路快速路的功能定位入手展开研究,结合道路设计标准、沿线建设条件及交通需求预测,提出了分路段、多层级的工程总体方案。该方案注重处理高架快速...

市政工程

城市高架桥抗倾覆分析及改造方案研究
【摘要】:结合某早期大型城市高架桥实例,对其独柱墩匝道桥进行了倾覆轴线法及规范法的抗倾覆分析,研究不同计算方法的差异,并将单支座柱墩改造为双支座板墩,验证其抗倾覆稳定性。结果表明,2种方法结论差异较大,恒载抗倾覆力矩是稳定性系数差异的主要因...
大直径钢管混凝土桥塔的温控防裂研究
【摘要】:为了研究大直径钢管混凝土桥塔的高效温控防裂措施,采用ansys有限元软件建立模型,分析评估普通混凝土低温浇筑、特种混凝土常温浇筑及特种混凝土低温浇筑3种方案在温控防裂方面的效果。研究结果表明:特种混凝土低温浇筑能够高效降低结构整体...
跨海斜拉桥异形桥塔塔底钢混结合段受力研究
【摘要】:为了精确掌握城市景观斜拉桥异形桥塔关键部位的力学特性,以某 70m+80m+200m+80m+70m 跨海异形桥塔斜拉桥为工程背景,通过有限元仿真分析的方法,研究分析其风帆形桥塔的塔底钢混结合段的详细应力分布与刚度性能,得出关键部...
增补管桩加固的既有桩基抗震韧性提升机理研究
【摘要】:为了提高既有桥梁桩基抗震韧性,提出一增补管桩的加固方案,采用有限元数值方法研究增补管桩对既有桩基抗震韧性提升机理和影响因素。通过不同桩长、桩径、桩距参数敏感性分析,得出:采取增补桩基抗震加固措施可明显提高被加固桩水平抗力,降低动荷...
任意多边形截面抗弯承载力程序BAPS开发与验证
【摘要】:针对复杂截面抗弯承载力验算难题,从受弯构件承载力计算的基本原理出发,给出了通用公式,采用ExcelVBA语言编写了验算程序BAPS。利用BAPS对常见构件进行了验算,并与流行商业软件进行了比较,验证了BAPS程序的正确性。...
融雪剂对钢渣沥青混合料性能的影响研究
【摘要】:鉴于钢渣工业固废堆存带来的环境问题及融雪剂在道路除雪的广泛应用,通过试验研究分析融雪剂对钢渣沥青混合料性能的影响。研究表明:宏观层面,盐类融雪剂对钢渣集料的物理力学性能影响较小,经盐类融雪剂处理后的钢渣沥青混合料残留稳定度呈小幅下...
高速铁路隧道喀斯特发育区处理关键技术研究
【摘要】:喀斯特作为常见的特殊不良地质,在隧道施工中极易引起围岩变形和隧道坍塌,对工程安全及后期线路运营安全造成严重影响。以吉林省某新建高速铁路隧道为例,采用地质雷达对隧道段进行隐伏喀斯特探测,根据喀斯特的发育程度对溶洞和喀斯特裂隙制定施工...
高浓度膨润土触变泥浆在砂质粉土工程中的应用
【摘要】:以实际工程为例,对比分析两种不同配比的触变泥浆对地表沉降和顶力大小的影响,证明了高浓度膨润土的触变泥浆在砂质粉土地层的可应用性,并提出了顶管施工过程中的几点注意事项。【关键词】:触变泥浆;砂质粉土;地表沉降;顶力...

建筑及材料工程

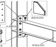
钢结构端板连接刚性节点力学性能影响因素研究
【摘要】:为了研究钢结构端板连接刚性节点的力学性能,建立了考虑复杂接触作用的非线性有限元模型,并利用已有试验数据进行验证。通过参数化分析,研究了5种对端板连接节点强度和初始转动刚度有影响的参数。数值分析表明,高强螺栓直径、螺栓预紧力和端板加...
nano-SiC改性沥青抗老化性能研究
【摘要】:对基质沥青和外掺质量分数分别为 2%4%6%8% 的nano-SiC改性沥青采用旋转薄膜烘箱老化试验(RTFOT)和压力老化试验(PAV)进行短期及长期老化,通过老化前后的三大指标(针入度、软化点、延度)试验、沥青流变性质(DSR...
密级配AC-16C沥青混合料配合比设计及验证
【摘要】:依据公路沥青混凝土路面的交通量、行车设计速度、通行车辆荷载等实际情况,完成了AC-16C沥青混合料所需原材料筛选、矿料配合比设计、最佳沥青用量、沥青混合料的性能验证等试验。试验结果显示:AC-16C沥青混合料的矿料配合比为 9.5...

海洋及环境工程

浅水区波浪作用下海底斜坡失稳破坏的数值分析
【摘要】:基于商业软件MATLAB计算获取浅水区中波压力数据,以外部表荷载形式导入大型有限元软件ABAQUS荷载添加模块内。结合强度折减法,针对浅水波浪作用环境下海底斜坡的破坏机制展开弹塑性有限元的数值模拟,探究波浪周期、波高和水深等参数对...
天津市典型城镇污水厂碳排放量核算及降碳措施分析
【摘要】:针对天津市污水处理行业绿色低碳转型需求,选取5座典型城镇污水处理厂,采用排放因子法和质量平衡法核酸2019、2021、2023年碳排放量,分析碳排放结构并提出未来降碳措施。【关键词】:城镇污水处理厂;碳排放;降碳措施;碳核算...
厌氧消化污泥重金属铬形态分布及稳定剂对其稳定效果研究
【摘要】:针对城镇污泥中重金属铬污染制约其资源化利用的问题,以厌氧消化污泥为对象,探究羟基磷灰石对铬的稳定效果。通过投加污泥干重 2%5%.10% 的羟基磷灰石,采用BCR连续提取法和HJ/T299—2007《固体废物浸出毒性浸出方法硫酸硝...
脉冲水解酸化对含有机氮废水处理效果分析
【摘要】:研究了脉冲水解酸化工艺作为预处理工艺对有机氮、COD含量高,来水成分复杂,处理难度大的工业园区废水处理效果,并通过工程案例加以验证。结果表明,该工艺提高进水的可生化性,对有机氮去除效果明显。...
相关杂志
订阅全年后,您可享受以下权益
①该本杂志即日起至未来1年内所有更新电子版杂志的使用权限;
②赠送该杂志的部分往期的杂志的使用权限,有效期1年。

全年订购价格: ¥54.00

订阅全年
--%>

登录龙源期刊网

温馨提示:

1.点击网站右上角的“充值”按钮可以为您的账号充值

2.充值金额可以选择30,50,100或500元

3.充值成功后即可购买网站上的任意杂志或文章

还没有龙源账户? 立即注册

购买杂志

天津建设科技

杂志价格:¥9.00元

  • 微信扫码支付
  • 当前余额:100.00

购买杂志

天津建设科技

杂志价格:¥9.00元

  • 微信扫码支付
  • 当前余额:¥100.00

    去充值
monitor
客服机器人