注册帐号丨忘记密码?
1.点击网站首页右上角的“充值”按钮可以为您的帐号充值
2.可选择不同档位的充值金额,充值后按篇按本计费
3.充值成功后即可购买网站上的任意文章或杂志的电子版
4.购买后文章、杂志可在个人中心的订阅/零买找到
5.登陆后可阅读免费专区的精彩内容
打开文本图片集
【中图分类号】 U445.466
【文献标志码】 A
0 引言
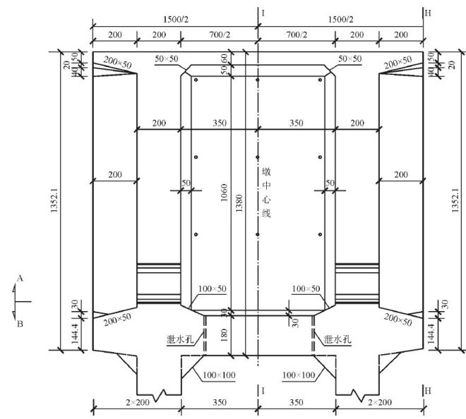
目前,连续刚构桥梁0号块施工常规的做法是采用托架作支撑平台,并按照梁体自重、施工机具、浇筑混凝土等荷载的1.2倍考虑预压荷载来设计验证托架支撑的可靠性[1]。此种托架结构验算是将0号块多阶段浇筑的混凝土视为一次性浇筑,全部由托架承受荷载[2]
但在实际0号块施工过程中,多阶段混凝土浇筑时间间隔较长,通常间隔时间为6~15天[3]。(剩余4922字)
登录龙源期刊网
购买文章
连续刚构桥零号块两阶段浇筑支撑托架受力分析
文章价格:4.00元
当前余额:100.00
阅读
您目前是文章会员,阅读数共:0篇
剩余阅读数:0篇
阅读有效期:0001-1-1 0:00:00