注册帐号丨忘记密码?
1.点击网站首页右上角的“充值”按钮可以为您的帐号充值
2.可选择不同档位的充值金额,充值后按篇按本计费
3.充值成功后即可购买网站上的任意文章或杂志的电子版
4.购买后文章、杂志可在个人中心的订阅/零买找到
5.登陆后可阅读免费专区的精彩内容
打开文本图片集
【中图分类号】 U441 + .5
0 引言
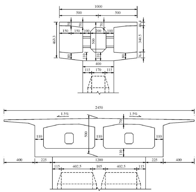
连续刚构桥,其0号块为墩梁固结的特殊结构形式、边界条件复杂,应力是复杂的三维应力状态[1]。目前,连续刚构桥的设计非常成熟,建立全桥的空间杆系模型,可以查看桥梁结构任意节点位移和应力;其0号块受力较大部位,采用加大配筋率提高安全系数。但由于0号块构造复杂,施工中受力较大,造成应力分布复杂,不能仅简单采用梁单元来分析0号块的结构受力,需要建立实体模型,精细化进行其局部应力分析,以明确局部受力薄弱部位。(剩余2547字)
登录龙源期刊网
购买文章
连续刚构0号块局部应力分析
文章价格:3.00元
当前余额:100.00
阅读
您目前是文章会员,阅读数共:0篇
剩余阅读数:0篇
阅读有效期:0001-1-1 0:00:00