注册帐号丨忘记密码?
1.点击网站首页右上角的“充值”按钮可以为您的帐号充值
2.可选择不同档位的充值金额,充值后按篇按本计费
3.充值成功后即可购买网站上的任意文章或杂志的电子版
4.购买后文章、杂志可在个人中心的订阅/零买找到
5.登陆后可阅读免费专区的精彩内容
打开文本图片集
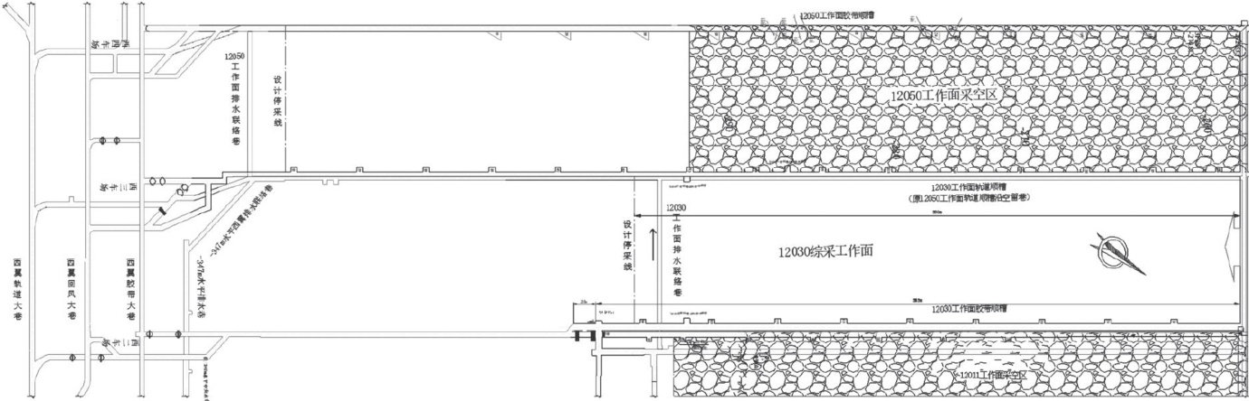
0引言
一般情况下,高瓦斯综采工作面的瓦斯治理方式主要有两种[1],其中一种为风排瓦斯,在工作面回采期间,通过增加风量,对涌出的瓦斯进行稀释,以此降低工作面的瓦斯浓度,保证安全生产。但是这种情况只适用于瓦斯涌出量较少的低瓦斯矿井,对于高瓦斯矿井,仅通过风量进行稀释瓦斯是不能满足工作面安全生产需要的[2]。(剩余5651字)
登录龙源期刊网
购买文章
高瓦斯综采工作面瓦斯综合治理技术研究
文章价格:4.00元
当前余额:100.00
阅读
您目前是文章会员,阅读数共:0篇
剩余阅读数:0篇
阅读有效期:0001-1-1 0:00:00