应用力学学报

应用力学学报

2025年03期
  • 收藏
收藏成功
微博 空间 微信
《应用力学学报》创刊于1984年,是由中华人民共和国教育部主管、西安交通大学主办的力学学术性刊物。本刊主要报道现代力学理...     展开

类型

双月刊

类别

定价
促销信息
全年订阅更优惠!
¥75.00 ¥45.00
目录

专家述评

超弹性材料宏观本构模型及其拟合
摘要:超弹性材料具有优异的力学性能,在工程中得到了广泛应用。为了精确计算超弹性材料的大变形响应,本研究综述了8种常用的超弹性宏观本构模型并给出了拟合方法。推导了单轴拉伸试验、等双轴拉伸试验、纯剪试验和体积压缩试验下的 Mooney-Rivl...
功能性负泊松比超材料研究进展与展望
摘要:负泊松比超材料,又被称为“拉胀"超材料,是一种力学超材料,具有特殊的力学性能,即在竖向受到压力(拉力)作用下,结构会发生横向收缩(膨胀)。这种特性与结构的拓扑排列关系密切,因此负泊松比超材料在多个领域具有广泛的应用前景。将对...

航空航天工程专栏

考虑结构遮挡和地影效应的环形桁架天线轨道热分析
摘要:环形桁架天线作为一种典型可展开卫星天线结构,由于具有大口径、质量轻、收纳率较高、刚度较好及总质量不随展开口径的增大而成倍地增加等优点,其在高功率星载天线中具有广阔的应用前景。空间热冷环境的交替以及温度分布的不均匀,对于具有大尺寸、高柔...
加载频率对TC17超高周疲劳性能影响研究
摘要:TC17钛合金是一种典型的发动机叶盘材料,其超高周疲劳性能与发动机的长寿命高可靠性设计直接相关。采用常规拉压、常规弯曲、加速拉压、加速弯曲4种试验方法开展TC17的超高周疲劳性能研究,其中常规试验频率( 1500±500 )...
复杂约束多体系统显式动力学表示及其应用
摘要:UDWADIA-KALABA方程为复杂约束多体系统提供了显式求解方法。该方法不用引入辅助变量,就可以使系统中的广义加速度与广义约束力解耦,进而得到显式表达的广义约束力和广义加速度。但是,在方程中要求质量矩阵是正定的,这不适用于具有奇异...
气候实验室发动机尾气小引射比降温排放特性研究
摘要:为了研究气候实验室室内发动机开车时尾气小引射比降温排放的影响因素及影响规律,以一典型小涵道比发动机为研究对象,采用数值模拟的方法,在考虑发动机尾气组分及可变比热流体属性条件下,分析排气管道直径、管道入口距离及喷水降温对于发动机尾气小引...
基于分布式FBG传感测量的旋翼动载荷工程建模与试飞验证
摘要:为了应用分布式光纤布拉格光栅(fiber Bragg grating,FBG)传感网络飞行实测直升机旋翼动载荷,综合分析旋翼桨叶的载荷与应变,以及FBG传感器的使用要求,设计了桨叶表面的FBG传感网络布设方案。在此基础上,提出基于FB...

固体力学

无限长圆筒局部受压的三维解析解及数值验证
摘要:基于圆筒轴对称问题的简化及修正贝塞尔函数的良好性质,构造了含待定函数的位移调和函数。应用所构造的位移调和函数,推导出无限长圆筒在圆筒内壁受局部均布压力下含待定函数的应力表达式,将含待定函数的应力表达式代入对应的边界条件,再采用傅里叶逆...
基于非协调广义混合元的应变能释放率分析
摘要:为了改进位移有限元法与虚拟裂纹闭合技术相结合的模型求解应变能释放率精度不高的问题,将非协调广义混合法与虚拟裂纹闭合技术融合,提出计算含裂纹板结构应变能释放率的非协调广义混合元方法。非协调广义混合元方法与虚拟裂纹闭合技术的承接关系简洁直...
基于PFC3D的超固结非饱和黏性土力学特性分析
摘要:为进一步研究超固结非饱和黏性土的力学特性以及对所提超固结非饱和黏性土三剪次加载面模型进行真三轴数值试验验证,以江西红黏土为研究对象,采用 PFC3D软件并基于Hill 接触模型建立了柔性膜条件下的超固结非饱和黏性土常规三轴以及真三轴试...
考虑法兰螺栓滑移的多棱锥型钢管杆挠度及附加弯矩研究
摘要:多棱锥型钢管杆广泛应用于城市周边输电线路,管与管之间连接通常采用法兰连接,鉴于目前对于多棱锥型钢管杆挠度的理论计算方法研究相对较单一,本研究将根据梁的挠曲线微分方程理论,结合法兰节点螺栓滑移,推导出在常见荷载(弯矩 M 、水平力 P ...
刚架弹性屈曲问题基于改进傅里叶级数法的研究
摘要:为建立适合不同弹性边界的刚架屈曲问题的统一解法,对含弹性支撑刚架的屈曲载荷展开研究。首先基于改进傅里叶级数法建立刚架的容许位移函数表达式,然后利用最小势能原理得到屈曲的特征方程并通过求解矩阵特征值得到刚架的屈曲载荷。在支座处和梁、柱连...
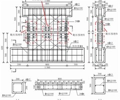
靴形预埋件全螺栓装配式混凝土墙板推覆性能研究
摘要:为实现钢筋混凝土墙板工业化生产和快速施工,提出了一种靴形预埋件全螺栓连接技术。通过水平推覆试验,对该新型连接混凝土板的破坏模式、应力分布以及受力性能等开展了研究。结果表明:该新型装配式墙板破坏模式为沿预埋件周围混凝土发生斜向剪切破坏,...
钢纤维对SAP内养护混凝土动态压缩和弯曲性能的影响
摘要:为了研究外掺钢纤维对内养护混凝土力学性能的影响,采用高吸水性聚合物(super absorb-ent polymer,SAP)作为内养护材料,开展了普通混凝土(normal concrete,NC)、内养护混凝土(internalcu...

动力学与控制

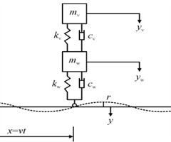
跳车冲击下车桥耦合振动参数影响性分析
摘要;研究车辆在不同参数影响下发生跳车,对桥梁车桥耦合响应的影响。以三跨变截面连续梁桥为研究对象,将变截面梁划分为有限个微段,进行受力分析得出桥梁振动方程;并选用1/4 车辆模型,运用达朗贝尔原理建立车辆的振动方程;再联立计算得到车桥耦合振...
基于ANCF的功能梯度薄椭圆柱壳的自由振动分析
摘要:基于绝对节点坐标(absolutenodal coordinate formulation,ANCF)法研究了功能梯度薄椭圆柱壳的自由振动特性。采用三阶Bézier曲线拟合技术,对ANCF矩形壳单元初始周向切矢量和周向弧长进...
基于倒数变量与广义柔度矩阵的桁架损伤识别
摘要:为了提高损伤识别的精度,引入倒数变量的概念,提出一种将倒数变量与广义柔度矩阵相结合的桁架损伤识别方法。这种方法仅需低阶模态参数。针对测量振型不完整的情况,引入一种基于不完整振型的控制方程,并使用基于非负最小二乘法的迭代策略求解损伤识别...
基于Sadek-Simiu法非平稳非高斯风速的极值研究
摘要:为了保证工程结构在长周期风速作用下安全稳定运营,非平稳非高斯风速极值对工程结构的影响是不可以被忽略的。本研究以现场实测风速为研究对象,根据风速样本是否剔除时变均值或者时变均方根情况,设置4种风速工况,并结合平稳转化法和Sadek-Si...
基于振动理论的灌浆拉索索力计算方法
摘要;灌浆拉索的索力计算需要考虑灌浆的附加质量及对拉索的振动影响,但目前还缺乏有效的计算方法。因此在灌浆拉索索力试验的基础上,研究灌浆拉索索力理论计算方法。将灌浆拉索视为带有均布附加弹性质量的两端铰接轴向受拉梁,根据弹性分布质量与拉索振动方...

流体力学

长方体框架型人工鱼礁的流场效应
摘要:长方体框架型人工鱼礁可以用来改变流场,为各种海洋生物提供有利的栖息环境,在海南岛近海等热带海域,还可为珊瑚的修复提供附着基底。利用声学多普勒流速仪(acoustic Dopplercurrent,ADV)测量了长方体框架型人工鱼礁模型...
网格类型对典型化工园区下垫面气体扩散模拟的影响
摘要:网格是计算流体力学(computational fluid dynamics,CFD)数值模拟的基础,为研究不同网格类型对化工园区气体扩散模拟的适用性,基于在典型化工园区进行的示踪气体( SF6 )外场泄漏实验,开展了全尺度数值模拟。...
基于离散单元法的双振型下钻井液振动筛不同颗粒筛分效率对比研究
摘要:直线型振动筛和平动椭圆振动筛作为钻井液振动筛的2种发展形式,研究2种振型振动筛在不同工作参数下的筛分效率,对实际生产、选型具有价值和意义。基于离散单元法,采用EDEM计算分析软件,对直线振型和平动椭圆振型下钻井液振动筛筛分效率进行仿真...

生物力学

高精度经颅直流电刺激对慢性踝关节不稳人群平衡功能、肌力及本体感觉的影响
摘要:目的 探究高精度经颅直流电刺激(HD-tDCS)对慢性踝关节不稳人群平衡功能、肌肉力量及本体感觉的影响。方法随机交叉双盲研究。26名慢性踝关节不稳受试者被纳入,并以随机顺序接受一次真刺激 (20min,2mA 电流强度)和假刺激(仅在...
基于MS-FE模型探究排球运动员ACL应力分布情况
摘要:目的 基于肌肉骨骼-有限元(muscular skeletal-finite element,MS-FE)模型探究排球运动员扣球落地瞬间左腿前交叉韧带(anterior cruciate ligament,ACL)应力、应变分布特征。...
快速伸缩训练对大学生男子篮球运动员下肢爆发力的影响研究
摘要:目的探讨快速伸缩训练对大学生男子篮球运动员下肢生物力学及爆发力的影响,为优化篮球专项训练提供理论依据。方法选取18名大学生男子篮球运动员,随机分为实验组(接受快速伸缩训练)和对照组(接受传统抗阻力训练),每组9人。在训练前后,分别对2...
相关杂志
订阅全年后,您可享受以下权益
①该本杂志即日起至未来1年内所有更新电子版杂志的使用权限;
②赠送该杂志的部分往期的杂志的使用权限,有效期1年。

全年订购价格: ¥270.00

订阅全年
--%>

登录龙源期刊网

温馨提示:

1.点击网站右上角的“充值”按钮可以为您的账号充值

2.充值金额可以选择30,50,100或500元

3.充值成功后即可购买网站上的任意杂志或文章

还没有龙源账户? 立即注册

购买杂志

应用力学学报

杂志价格:¥45.00元

  • 微信扫码支付
  • 当前余额:100.00

购买杂志

应用力学学报

杂志价格:¥45.00元

  • 微信扫码支付
  • 当前余额:¥100.00

    去充值
monitor
客服机器人