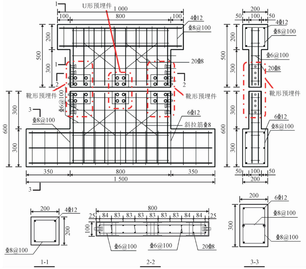
靴形预埋件全螺栓装配式混凝土墙板推覆性能研究

打开文本图片集
中图分类号:TU375.2 文献标志码:A文章编号:1000-4939(2025)03-0598-11
Abstract:Inorder to realize the industrialized productionand rapid construction of reinforced concrete wall panels,a full bolt connection technology with boots-shaped embedded parts is proposed in this paper. Through the horizontal pushover test,the failure mode,stress distribution and mechanical performance of the new connecting concrete panels were studied.The results show that the failure mode of the new prefabricated wall panels is oblique shear failure along the concrete around the embedded parts.The specimens show good load-bearing performance and connection performance.Adding U-shaped embedded parts in the middle can improve the bearing capacity,stiffness and ductility of the specimen,and reduce the shear slip atthe joint of the specimen.Based on the test results,the finite element model of the new prefabricated wall panels is established,which is in good agreement with the test results.Through theoretical analysis, the calculation formula of horizontal shear bearing capacity of the new prefabricated wall panel is proposed.
Key words:fullbolt connection;prefabricated structure ; boots-shaped embedded part;pushover perform-ance ;shear bearing capacity
传统混凝土结构施工周期长、资源损耗严重且对环境危害大,已逐渐不能满足建筑行业绿色高质量发展要求。(剩余11659字)