注册帐号丨忘记密码?
1.点击网站首页右上角的“充值”按钮可以为您的帐号充值
2.可选择不同档位的充值金额,充值后按篇按本计费
3.充值成功后即可购买网站上的任意文章或杂志的电子版
4.购买后文章、杂志可在个人中心的订阅/零买找到
5.登陆后可阅读免费专区的精彩内容
打开文本图片集
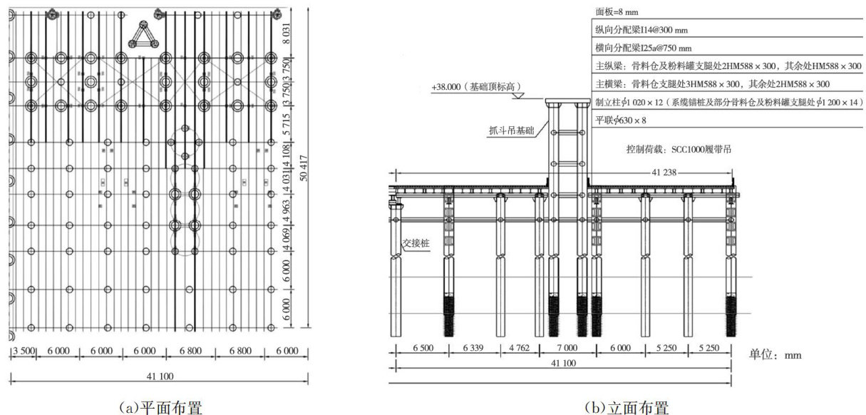
0 引言
苍容浔江大桥1采用跨径布置为 (55+520+520+ 55)m的三塔空间缆地锚式悬索桥结构体系2,大桥中塔位于浔江中央,塔高108. 9m ,中塔处水深达到 20m ,距离两侧岸边约500m,且位于繁忙航道中央。考虑到桥塔塔位的地形、地质、水文和环境等自然因素以及岩层情况,大桥索塔均采用群桩基础,整体式承台,其中中塔桩径为3.5m 。(剩余4149字)
登录龙源期刊网
购买文章
广西首座水上混凝土搅拌站的施工控制分析
文章价格:4.00元
当前余额:100.00
阅读
您目前是文章会员,阅读数共:0篇
剩余阅读数:0篇
阅读有效期:0001-1-1 0:00:00