注册帐号丨忘记密码?
1.点击网站首页右上角的“充值”按钮可以为您的帐号充值
2.可选择不同档位的充值金额,充值后按篇按本计费
3.充值成功后即可购买网站上的任意文章或杂志的电子版
4.购买后文章、杂志可在个人中心的订阅/零买找到
5.登陆后可阅读免费专区的精彩内容
打开文本图片集
摘要:
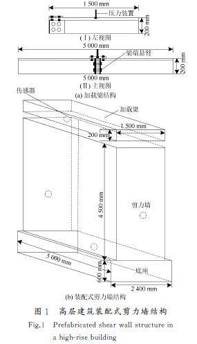
为了更好地保障高层建筑的抗震安全性和稳定性,对高层建筑装配式剪力墙结构抗震性能进行研究。将框架结构剪力墙、全部预制装配式剪力墙和整体装配式双面叠合混凝土剪力墙作为研究对象,利用地震波加载装置模拟El-Centro波、Taft波、人工合成地震波的加载过程,在试件不同位置设置5个测点,每个测点上布设位移传感器、应变传感器、荷载传感器、加速度传感器、倾角仪等不同传感器,在地震波加载装置预加载成功的情况下进行试验。(剩余12424字)
登录龙源期刊网
购买文章
高层建筑装配式剪力墙结构抗震性能试验研究
文章价格:6.00元
当前余额:100.00
阅读
您目前是文章会员,阅读数共:0篇
剩余阅读数:0篇
阅读有效期:0001-1-1 0:00:00