廊坊师范学院学报(自然科学版)

廊坊师范学院学报(自然科学版)

2023年01期
  • 收藏
收藏成功
微博 空间 微信
《廊坊师范学院学报(自然科学版)》秉承反映学科研究前沿、促进校内外教学、科研成果交流的办刊宗旨,根据本校学科特点开设以下...     展开

类型

季刊

类别

定价
促销信息
全年订阅更优惠!
¥9.00 ¥4.90
目录

数学与信息科学

对称群[S4]的特征标行列式的计算
【摘 要】 特征标的行列式是有限群特征标理论中的一个重要概念。利用对称群[S4]的特征标表和特征标的性质,计算[S4]的不可约特征标的行列式,进一步得到[S4]的任意特征标行列式的计算公式。 【关键词】 特征标;特征标表;特征标...
基于Lagrange插值的一类六阶收敛的改进平均值牛顿迭代法
【摘 要】 利用定积分几何意义,推导出经典牛顿法、算术平均牛顿法和调和平均牛顿法,结合Lagrange插值定义,提出了一类新的六阶收敛的平均值牛顿迭代法。该算法每次迭代只需要计算两个函数值和两个一阶导数值,有效避免对函数进行高阶求导...
Filippov系统的边界平衡点分岔
【摘 要】 对一类Filippov系统的边界平衡点分岔进行分析,并证明Filippov系统发生边界平衡点分岔的条件,最后呈现Filippov系统对应的分岔图。 【关键词】 Filippov系统;边界平衡点分岔;分岔图 Bound...

物理与电子技术

物理研究方法综述及其在材料物理研究中的应用
【摘 要】 总结物理领域中涉及到的研究方法,如模型法、等效法、类比法、逆向思维法、猜想法、控制变量法、归纳法、转换法、几何描述法、放大法和微元法等。此过程有利于物理研究方法在教学和科学研究过程中的借鉴、应用和推广。结合相关科学研究,...
一类新型纠缠混沌系统的电路设计及在图像加密中的应用
【摘 要】 首先根据纠缠混沌系统的构建方法,构建了一类含有指数及正余弦项的纠缠混沌系统,运用Matlab对该系统的李雅普诺夫指数、分岔图及功率谱图等动力学特性进行理论分析和数值仿真,结果表明该系统具有较高的参数敏感特性。基于电路仿真...
智能家居控制系统设计
【摘 要】 设计了以STM32单片机为主控芯片,结合LD3320语音识别模块、WIFI通信模块、步进电动机驱动模块以及各环境参数检测模块,实现对家居的远程及智能语音控制。设计了基于专家系统的软件架构,实验表明该系统能够对环境温湿度变...
基于LabVIEW漏水检测监控系统的设计
【摘 要】 针对存放重要物品场所防漏水需求,基于LabVIEW设计并实现了漏水检测监控系统。分析泄露检测的基本原理,简要介绍串口通讯中常用的循环冗余校验并通过LabVIEW实现。按照漏水检测仪Modbus通信控制协议,实现了对漏水事...
基于物联网嵌入式单片机的电气设备运行状态远程监控
【摘 要】 常规电气设备运行状态远程监控方法在提取运行状态信号的时域特征时,忽略了信号数据偏差量的影响,导致对设备运行状态监控产生的误差较大,因此提出基于物联网嵌入式单片机的电气设备运行状态远程监控方法。利用物联网嵌入式单片机采集正...

经济与管理科学

河北省农业产业数字化发展机理、模式与对策
【摘 要】 通过厘清农业产业数字化发展影响机理,总结河北省农业产业数字化发展典型模式,建立双向固定效应模型,从定量角度探究河北省农业产业数字化发展影响因素。研究表明,农业产业数字化发展会增加农户收入、提高农业经营主体效益、促进农业发...
碳限额与交易政策下考虑零售商公平关切的低碳供应链决策
【摘 要】 碳限额与交易政策下,在供应链中考虑制造商的减排技术投入,构建了零售商无公平关切、有公平关切的两种低碳供应链模型,研究两种情形下的最优决策问题。结果表明:零售商的公平关切系数与制造商的产品碳减排量负相关,但在一定条件下,与...
环境规制、绿色科技创新与产业结构升级
【摘 要】 运用PVAR模型并采用长江经济带2003-2020年11省市的数据,实证分析了环境规制、绿色科技创新与产业结构升级三者之间的关系。结果表明:(1)环境规制强度有利于产业结构升级且效果显著;(2)绿色科技创新的发展有利于推...

建筑科学

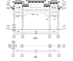
北方聚落钢筋混凝土仿古牌楼设计与安全分析
【摘 要】 以传统的钢筋混凝土仿古牌楼(四柱三间)为例,在水平地震力和风荷载共同作用下,通过有限元软件对钢筋混凝土仿古牌楼的安全性进行分析评价,找出薄弱点并提出安全措施,为仿古牌楼的设计与施工建造提供参考。 【关键词】 钢筋混凝土;...
酸性干湿循环作用下红砂岩物理力学性能劣化规律
【摘 要】 研究干湿循环与酸溶液耦合作用对红砂岩物理力学性质的影响,通过对红砂岩试样进行干湿循环试验、单轴压缩试验、扫描电镜及矿物成分测试,研究不同干湿循环次数和溶液不同pH值下试样的物理力学性质参数、微观结构及矿物成分的变化规律。...
基于正交试验的大学校园室外风环境优化设计
【摘 要】 利用数值模拟技术分析室外风环境状况,以正交试验为研究方法,探讨建筑布局、建筑长度、建筑间距等多因素对室外风环境的影响。通过试验得到的13组试验组合,以平均风速与平均空气龄为风环境的评价指标,利用Design Expert...

心理学研究

夫妻关系适应性与学龄前儿童情绪调节策略的关系
【摘 要】 探讨夫妻关系适应性与学龄前儿童情绪调节策略的关系,采用简单随机抽样法向学龄前儿童家长发放《夫妻适应量表》和《学前儿童情绪调节策略问卷》。对184份有效数据进行相关分析和回归分析,结果表明夫妻关系适应性与儿童情绪调节策略存...
基层民警心理资本与工作投入关系研究
【摘 要】 探讨基层民警心理资本与工作投入的现状与关系。采用分层整群随机抽样方法,对223名A省基层民警进行问卷调查,采用心理资本量表、工作投入量表和基本信息情况表调查其心理资本和工作投入情况。结果显示基层民警心理资本的得分和工作投...
幼儿教师职业心理素质指标体系构建与影响因素研究
【摘 要】 探讨幼儿教师职业心理素质的指标体系及幼儿教师职业心理素质对幼儿教育发展的影响,了解京津冀地区幼儿教师职业心理素质的发展水平,促进幼儿教师心理素质的发展。采用因素分析的方法对京津冀地区306名幼儿教师开展调查,经项目分析、...

教学研究

机械电子工程专业边界再设计及人才培养模式研究
【摘 要】 主要阐述北华航天工业学院机械电子工程专业教学改革的实践经验,分析教学改革的现实背景,对机械电子工程专业的边界再设计及其人才培养模式进行探索。通过边界再设计及人才培养模式改革,锻炼和提高了学生的能力,保障了人才培养的质量。...
基于数字化技术的中国古建筑构造类课程教学改革研究
【摘 要】 以三维扫描、倾斜摄影和三维绘图为主体的数字化技术可以有效融入专业课程的教学实施和评价,是解决现实条件下学生与古建筑实体分离问题的有效途径。在教学中通过数字化技术进行数据采集和建模并与课程讲授和教学评价相结合,可以帮助学生...
融入思政元素的《物理学前沿》课程改革与实践
【摘 要】 对大学物理专业课《物理学前沿》课程在知识结构、内容形式和教学形式三个方面进行了探索与尝试。从实施效果来看,改革后的课堂内容和效果更容易激发学生的学习兴趣,涵盖更多的知识面从而进一步拓宽了学生的视野,实时引入科学家精神品质...
融合“四新”案例的学生创新实践能力培养探索与实践
【摘 要】 针对计算机科学与技术师范专业人才培养中存在的师范教育弱化、教师对实践能力理解不充分,教学中案例资源单一、短缺等问题,通过实践研究,提出面向中学人工智能教育的“四新”师范人才培养理念,明确创新实践能力培养的重要路径,丰富“...
地方院校食品科学与工程专业创新型人才培养模式探索
【摘 要】 创新能力是本科学生应该具备的素养。以果蔬贮藏与加工课程为例,通过优化教学内容、改善理论和实践教学模式,实施科教和校企结合的教学模式和多方实践能力考核方式,构建创新型和应用型人才培养模式。 【关键词】 创新;教改;校企...
思政教育融入《数字逻辑电路》课堂的探索
【摘 要】 对《数字逻辑电路》课程进行简要阐述,探讨了将思政教育融入《数字逻辑电路》课堂的教学思路和教学方法,并就思政教育与《数字逻辑电路》不同模块教学内容如何结合提出建议,对于引导学生形成正确的价值观以及良好的思想道德修养具有重要...
基于“看图学规范”的《砌体结构》课程实践教学新方式
【摘 要】 基于移动互联网络的大环境,为强化《砌体结构》课程的实践教学,探讨了以相关规范为主要内容、以图形为主要载体,在课内即可进行的《砌体结构》课程实践教学新方式——“看图学规范”。该方式将规范这一实践资源宝库纳入了《砌体结构》课程...
“网络+IIT融合教育”教学研究与实践
【摘 要】 提出借助网络+IIT设备,采用课前导学、课中讲授、课后督导的网络+IIT自主融合模式,反映线上授课的深度互动性和线上线下教学资源的充分利用率,初步达到了“以学生为中心”的自主学习和合作学习的目的。根据网络评价反馈数据,及...
相关杂志
订阅全年后,您可享受以下权益
①该本杂志即日起至未来1年内所有更新电子版杂志的使用权限;
②赠送该杂志的部分往期的杂志的使用权限,有效期1年。

全年订购价格: ¥19.60

订阅全年
--%>

登录龙源期刊网

温馨提示:

1.点击网站右上角的“充值”按钮可以为您的账号充值

2.充值金额可以选择30,50,100或500元

3.充值成功后即可购买网站上的任意杂志或文章

还没有龙源账户? 立即注册

购买杂志

廊坊师范学院学报(自然科学版)

杂志价格:¥4.90元

  • 微信扫码支付
  • 当前余额:100.00

购买杂志

廊坊师范学院学报(自然科学版)

杂志价格:¥4.90元

  • 微信扫码支付
  • 当前余额:¥100.00

    去充值
monitor
客服机器人