河北工程大学学报(自然科学版)

河北工程大学学报(自然科学版)

2025年02期
  • 收藏
收藏成功
微博 空间 微信

类型

双月刊

类别

定价
促销信息
全年订阅更优惠!
¥10.00 ¥6.00
目录

矩形钢管混凝土翼缘蜂窝双腹板H型组合短柱轴压性能研究
摘要: 为研究矩形钢管混凝土翼缘蜂窝双腹板 H 型组合短柱的轴压性能,以长细比、约束效应系数、钢管屈服强度、混凝土强度、孔高比及距高比等为控制参数,共设计了19 根足尺试件。 基于简化的钢材本构模型与考虑约束的混凝土非线性本构模型,利用 A...
冻融后 L 形型钢混凝土柱轴压试验与模拟
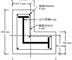
摘要: 为研究冻融循环作用对型钢混凝土(SRC)异形柱结构受力性能的影响,基于5 根L 形SRC异形柱冻融后轴压试验研究与14 根 L 形 SRC 异形柱模拟研究,进行了混凝土强度、配箍率、含钢率参数分析,依据结果建立了冻融后承载力计算公式...
北山深层花岗岩流变力学特性试验研究
摘要: 以甘肃北山深部地层的岩芯为研究对象,探讨北山花岗岩在不同围压条件下的短期和长期力学特性,进而为北山核废物地质处置地下实验室的深部建设提供理论支持。 开展了常规三轴压缩试验和蠕变试验研究,主要结论如下:(1) 在三轴压缩试验中,北山花...
基质和块石强度对bimrocks类岩石力学特性影响
摘要: 为研究基质和块石强度对 bimrocks 类岩石力学特性的影响,以不同配比的水泥、石英砂混合制作块石及基质,制成两种基质配比、四种含石量的试样,开展室内单轴试验和直剪试验。 试验结果表明:单轴压缩试验条件下,当含石量为 50% 时基...
基于PFC-CFD耦合的发泡泥浆渗流数值模拟研究
摘要: 基于 PFC3D 软件建立了一维发泡泥浆渗流模型,开展流固耦合模拟,并通过 FISH 函数实现气泡粒径的动态调整。 此外,开发了连续注浆算法,验证了泥浆分布的均匀性与连续性,成功模拟发泡泥浆在土层中的渗流过程。 针对泥膜形成时间难以...
基于瑞雷面波波速黄土地基挤密桩法处理效果评价
摘要: 为快速检测黄土地基挤密桩法处理效果,选取澄韦高速一处挤密桩法地基处理区域为试验区,采用多道瞬态瑞雷面波法进行快速检测。 为了区分桩间土与挤密桩的处理效果,对试验区采用两种布点方式进行现场试验研究,通过公式将检测数据分区域处理,得到每...
盾构开挖不同特性围岩振动特征分析
摘要: 为深入了解盾构掘进振动对不同地层的影响,选择盾构机在软岩地层、中硬岩地层、硬岩地层掘进的典型工况进行现场振动信号监测。 在对振动信号进行分析时,针对盾构施工中振动信号瞬时非平稳性的特点,结合希尔伯特黄变换分析法的自适应优势,运用经验...
基于 EIMD 的桥梁半主动控制与地震自复位性能研究
摘要: 为了验证电磁惯质阻尼器(EIMD)应用于桥梁结构半主动控制的可行性,对其进行了试验研究,验证了其力学模型的准确性与参数敏感性。 提出了一种新型控制算法,并以此为基础设计了 EIMD-连续梁桥控制系统。 以一个实际工程连续梁桥为研究对...
高压天然气管道泄漏火球危害模拟研究
摘要: 基于热剂量准则,建立了闪燃火球的数学模型,使用 MATLAB 编程实现了动态闪燃火球热辐射剂量的程序化计算,研究了泄漏孔径、管道运行压力和环境温度对火球热辐射危害范围的影响,并由临界热辐射剂量得出了所研究工况下 8 种危害区域的界限...
某输煤栈桥改造加固工程卸荷技术研究
摘要: 为提升某输煤栈桥负载状态下新增托架及支架部分与原结构的协同工作性能并减少原结构加固量,采用千斤顶对原结构实施卸荷。 通过有限元软件模拟不同卸荷程度与卸荷方式,系统性对比杆件内力、千斤顶读数及超限构件数量的变化情况。 结果表明:当卸荷...
唐山开滦某深部煤矿综采面顶板破断及控制研究
摘要: 针对开滦某深部煤矿综采面基本顶破断步距、基本顶结构形态及对支架合理工作阻力的确定等问题进行了深入研究。 推导出基本顶破断步距计算公式,建立了综采面基本顶结构形态的判断方法,构建了基本顶不同结构形态下支架工作阻力的计算公式。 结果表明...
基于 Folium 地理信息可视化的地震数据统计分析
摘要: 为了更加清晰地对我国的地震分布和震源深度特征进行统计分析,根据中国地震局公布的中国及周边地区地震数据,以 2011—2022 年中国及周边地区 5. 0 级以上地震数据为例,运用Python 第三方库——Folium 地图数据可视化...
选区激光熔化成形GH3536拉伸力学性能分析
摘要: 采用选区激光熔化技术成形了 GH3536 合金拉伸样件,测试了不同成形角度下的拉伸力学性能差异。 水平方向成形件进行热等静压处理 (1175‰ 炉冷)后,对比未进行处理的试样(沉积态试样),分析了处理后材料性能变化的原因。 采用晶体...
乡村胡同宽高比的情感舒适度量化研究
摘要: 为了量化乡村胡同空间宽高比 (D/H) 对人类情感舒适度的影响,依据冀南地区乡村的实际情况,设计了3 种不同高宽比的胡同空间,邀请 32 名被试在 2D 场景中进行体验,记录他们的情绪变化,收集了主观情感量表数据与生理数据,共同量化...
基于回归分析的环境设计感知要素与审美情感关系研究
摘要: 探讨了环境设计感知要素与审美情感之间的关系,为生成式人工智能在建筑和环境设计中的应用提供了基础框架。 通过问卷调研,收集了空间感、亮度感、尺度感、韵律感、秩序感、多变性、多彩性和自然性等 8 个感知要素,以及安全感、愉悦感、吸引力、...
相关杂志
订阅全年后,您可享受以下权益
①该本杂志即日起至未来1年内所有更新电子版杂志的使用权限;
②赠送该杂志的部分往期的杂志的使用权限,有效期1年。

全年订购价格: ¥36.00

订阅全年
--%>

登录龙源期刊网

温馨提示:

1.点击网站右上角的“充值”按钮可以为您的账号充值

2.充值金额可以选择30,50,100或500元

3.充值成功后即可购买网站上的任意杂志或文章

还没有龙源账户? 立即注册

购买杂志

河北工程大学学报(自然科学版)

杂志价格:¥6.00元

  • 微信扫码支付
  • 当前余额:100.00

购买杂志

河北工程大学学报(自然科学版)

杂志价格:¥6.00元

  • 微信扫码支付
  • 当前余额:¥100.00

    去充值
monitor
客服机器人