大型薄壁结构件制造过程技术探讨
            
                        
                        
            	
            
                 
                
                
            
            
                
                    
                    打开文本图片集
            
            中图分类号:TG506 文献标识码:B 文章编号:1004-8901(2025)04-0019-02
Technical Discussionon the ManufacturingProcess ofLarge Thin-Walled Structural Components
LIAO Xiao-bin,ZHANG Zhi,ZENG Jian-jun (Sichuan Kexin Mechanical& Electrical Co.,Ltd.,Shifang Sichuan 6l84Oo,China)
AbstractLrgaldcualotsuetisiontllatdectualacteisi evitablyulnerabletdeformationinsemblyweldingandeattreatetproceesuringmanufacturingBynalyngthecassofthe issuesandtakingespodgmeasuresimesioaldevaondforatiocanbefetielyeduced,tereyuringtthi mensional accuracy requirements of equipment.
Keywords:large thin-walled structural components;assembly;welding;deformation doi: 10,3969/j .issn.1004-8901.2025.04.006
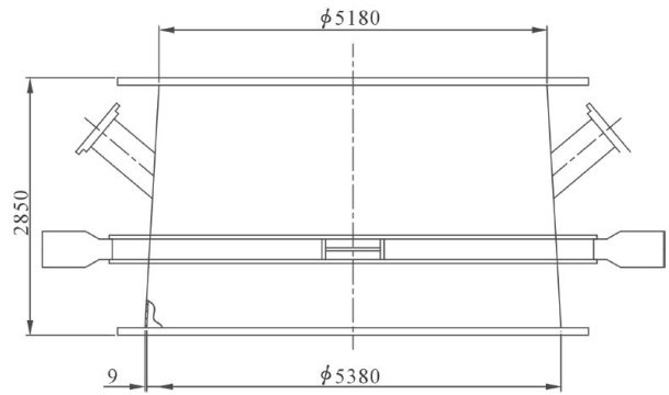
某项目大型薄壁件上端直径 5180mm ,下端直径 5380mm ,为异型结构件。(剩余1645字)