注册帐号丨忘记密码?
1.点击网站首页右上角的“充值”按钮可以为您的帐号充值
2.可选择不同档位的充值金额,充值后按篇按本计费
3.充值成功后即可购买网站上的任意文章或杂志的电子版
4.购买后文章、杂志可在个人中心的订阅/零买找到
5.登陆后可阅读免费专区的精彩内容
打开文本图片集
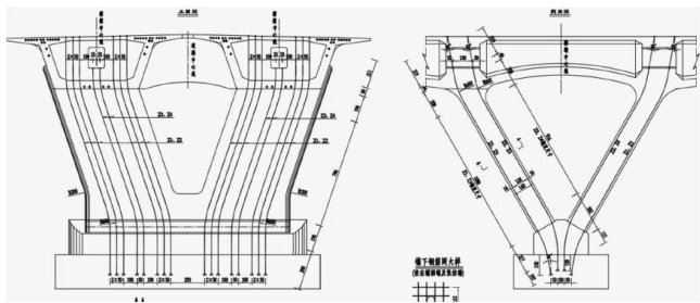
1 工程概况
流美大桥位于福建省宁德市福鼎市市区,系原旧桥拆除重建工程,新建流美大桥建于原桥桥址上。起点引桥布置一联 33.5+36.0+23.5m 预应力砼连续箱梁桥;终点引桥布置一联 4×31m 预应力砼连续箱梁桥;主桥布置一联 46.5+75+46.5m 双V型刚构预应力连续梁桥;桥梁总长为 393.5m 。(剩余5708字)
登录龙源期刊网
购买文章
桥梁双V型桥墩及0号块施工技术要点分析
文章价格:4.00元
当前余额:100.00
阅读
您目前是文章会员,阅读数共:0篇
剩余阅读数:0篇
阅读有效期:0001/1/1 0:00:00