注册帐号丨忘记密码?
1.点击网站首页右上角的“充值”按钮可以为您的帐号充值
2.可选择不同档位的充值金额,充值后按篇按本计费
3.充值成功后即可购买网站上的任意文章或杂志的电子版
4.购买后文章、杂志可在个人中心的订阅/零买找到
5.登陆后可阅读免费专区的精彩内容
打开文本图片集
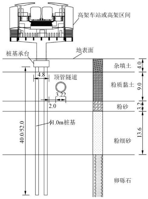
关键词:顶管隧道;桩基变形;数值模拟;高架车站;高架区间
中图法分类号:U456 文献标志码:A DOI:10. 15974/j. cnki. slsdkb.2025. 08.011
文章编号:1006-0081(2025)08-0067-06
0 引言
顶管法作为一种非明挖工法,因其对地面和环境影响小,工程投资低等优点被广泛应用于电力通道、排水箱涵等市政管网的建设中[1-2]。(剩余9682字)
登录龙源期刊网
购买文章
顶管隧道长距离平行侧穿高架桥桩基础的影响研究
文章价格:5.00元
当前余额:100.00
阅读
您目前是文章会员,阅读数共:0篇
剩余阅读数:0篇
阅读有效期:0001-1-1 0:00:00