注册帐号丨忘记密码?
1.点击网站首页右上角的“充值”按钮可以为您的帐号充值
2.可选择不同档位的充值金额,充值后按篇按本计费
3.充值成功后即可购买网站上的任意文章或杂志的电子版
4.购买后文章、杂志可在个人中心的订阅/零买找到
5.登陆后可阅读免费专区的精彩内容
打开文本图片集
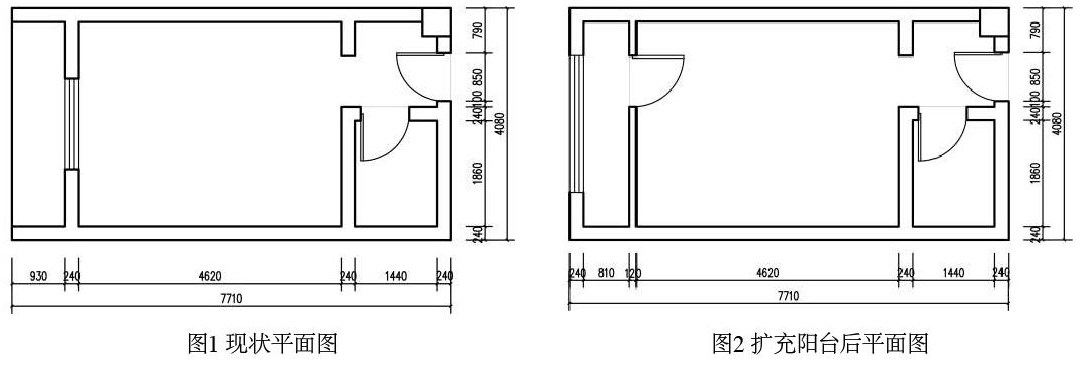
关键词:宿舍 大学生 改造 行为需求 环境
中图分类号:TU238+.2 文献标识码:A
文章编号:1003-0069(2022)07-0126-03
引言
随着时代的发展,我国大学生的数量在逐年增长,高校宿舍已成为大学生重要的居住生活场所之一。当代大学生独立且个性,目前传统的学生宿舍居住环境功能单一、空间分布利用率较低,无法很好地满足学生的学习及课余生活需求,基础设施提升问题亟需解决。(剩余6150字)
登录龙源期刊网
购买文章
基于环境行为学对大学生宿舍改造设计
文章价格:5.00元
当前余额:100.00
阅读
您目前是文章会员,阅读数共:0篇
剩余阅读数:0篇
阅读有效期:0001-1-1 0:00:00