消防界

消防界

2025年16期
  • 收藏
收藏成功
微博 空间 微信
《消防界》杂志是我国具有影响力和权威性的应急消防安全类专业期刊,系中国核心期刊(遴选)数据库、中国知网(CNKI)、中文...     展开

类型

半月刊

类别

人文科普
定价
促销信息
全年订阅更优惠!
¥35.00 ¥21.00
目录

消防管理

大型商业综合体人员密集场所火灾疏散路径规划与应急演练优化研究
摘要:在城市快速发展进程中,大型商业综合体作为一种集购物、餐饮、休闲、办公于一体的复合型公共建筑,具有人员高度密集、空间结构复杂、可燃物分布广泛等突出特征。一旦此类场所发生火灾,火势往往蔓延迅速,烟气扩散路径多变,极易造成重大人员伤亡。本文...
企业职工消防应急处置能力提升的培训方法研究
摘要:针对当前企业职工消防应急处置能力薄弱、培训内容同质化与形式化突出的问题,本文从培训方法创新角度展开系统探索,构建了以“精准设计-高效实施-选代优化”为核心的消防应急培训全流程方法体系。该体系在培训设计层面提出岗位适配型、实景模拟型与互...
建筑工程防火管理体系构建与实施策略研究
摘要:本文聚焦建筑工程防火管理体系的构建与实施策略,系统探讨了防火管理在保障建筑安全与降低火灾风险中的关键作用。通过整合组织架构、责任制度、风险评估与隐患排查等多个维度,构建了系统化的管理体系框架。同时,提出以技术防控、培训演练、监督检查和...
石油化工企业消防安全管理存在的问题及对策研究
摘要:石油化工企业作为典型的高危行业,生产过程涉及大量易燃易爆物质,工艺条件复杂,极易引发火灾、爆炸等事故,严重威胁人员生命财产安全。本文在分析石油化工企业火灾特点的基础上,指出当前行业在安全设计标准系统性不足、消防安全管理责任落实不到位、...
建筑工程管理中消防安全风险评估与控制研究
摘要:当前建筑工程正朝着超高层、大跨度、多功能方向发展,消防安全风险的耦合性与传导性显著增强,已成为制约工程管理质量的关键瓶颈。火灾事故的发生并非单一因素所致,而是设计缺陷、施工违规与运营失管等多环节问题叠加的结果。本文以建筑工程全生命周期...
新形势下医院消防安全管理工作创新实践研究
摘要:本文深入分析了新形势下医院消防安全管理工作面临的挑战。在此基础上,提出了医院消防安全管理工作的创新路径,即构建基于物联网和人工智能技术的电气火灾智能监测与预警系统,实现从被动报警向主动预防转变;优化高层建筑分区疏散方案与垂直救援通道设...
物业消防管理与新能源设施协同发展的理论框架与实践路径探讨
摘要:随着新能源设施在社区的广泛应用,其与物业消防管理的协同发展成为保障社区安全、推动绿色可持续发展的关键。本文深入剖析物业消防管理与新能源设施协同发展的重要性,构建涵盖资源整合调配、风险防控协同、权责清晰划分的理论框架,并结合实际提出构建...
建筑工程防火管理体系构建与实施策略研究
摘要:建筑工程防火管理是保障工程质量与人民群众生命财产安全的重要环节。本文系统探讨了建筑工程防火管理体系的构建与实施策略,从火灾特点分析入手,围绕组织架构、制度设计、技术防控和教育培训四个方面展开论述,并分阶段阐述了设计、施工、验收及使用等...

消防设备

无人机与直升机在综合救援中的应用研究
摘要:随着自然灾害与公共安全事件日益频发,现代航空救援体系正朝着高效、智能与协同的方向快速发展。传统直升机救援虽综合能力强,但面临成本高昂、风险较大、环境感知受限等固有局限。无人机的迅速崛起,凭借其部署灵活、零人员风险、使用成本低等优势,能...
建筑防火材料选用对工程安全管理的影响分析
摘要:合理选用建筑防火材料是确保工程消防安全的核心环节,对火灾防控、人员疏散及财产保护具有决定性影响。随着建筑形态与功能日趋复杂,防火材料除须满足基础阻燃要求外,还应兼顾结构适配性、环境耐受度与可靠性。然而,当前实践仍存在因压低成本导致的质...
面向森林防火的林区路网与消防蓄水设施规划研究
摘要:林区作为维护生态安全、促进绿色发展的重要空间,其防火能力直接关系生态系统的稳定与林业资源的可持续利用。近年来,受全球气候变化和区域人为活动影响,森林火灾频发且强度加剧,对现有火灾防控与应急救援体系提出更高要求。道路系统与消防蓄水设施是...
土木工程现场消防设施的设置规范及相关措施探讨
摘要:土木工程现场消防设施的合理设置,是保障施工安全的重要基础。随着工程建设规模不断扩大、结构日趋复杂,施工现场火灾风险日益凸显,科学配置消防设施已成为行业关注的重点。本文结合现行消防技术标准与工程实践经验,系统地梳理了施工现场关键消防设施...
城市综合体中市政给排水与消防系统的智能化应用研究
摘要:随着城市化进程的加速,大型城市综合体已成为现代都市发展的核心单元。其功能高度复合、人员密集、系统高度集成的特点,对市政给排水与消防系统的安全、高效与可持续运行构成了严峻挑战。传统系统多依赖人工操作与静态设计,在面对突发性高负荷、设备老...
大型水电站地下厂房消防喷淋系统检测与风险评价研究
摘要:本文聚焦大型水电站地下厂房消防喷淋系统,在解析该系统组成特点与特殊性的基础上,系统地梳理了其检测方法、流程与相关标准,构建了完整的风险评价指标体系,并提出相应的风险防控策略。研究表明,受地下厂房特殊的空间结构与环境条件影响,其消防喷淋...
高层建筑防火构件的检测与耐火性能研究
摘要:高层建筑在现代城市发展中具有重要地位,其防火安全直接关系人民群众生命财产安全。本文系统地研究了高层建筑中关键防火构件的检测方法、耐火性能表现及其提升策略,重点探讨了防火门窗、防火卷帘、防火隔墙与楼板以及结构构件防火保护等关键元素的检测...
高层建筑物消防安全隐患及防火设备监督措施探讨
摘要:高层建筑由于结构复杂、功能多样且人员密集,消防安全管理面临严峻挑战。本文剖析高层建筑火灾的典型特征及隐患根源,包括火势蔓延迅速、疏散组织困难、外部扑救条件受限以及安全管理责任交叉等,并在此基础上,将消防安全隐患系统地归纳为通道与设施类...

消防技术

森林防灭火技术创新与应用研究
摘要:森林防灭火技术的创新与应用,是提升火灾扑救效率、构建智能化防火体系的关键。研究表明,通过装备升级、智能决策辅助、灭火材料创新及区域联防联控等举措,能够系统性地提高森林火灾防控能力。本文旨在探讨相关技术的创新路径与应用策略,为提升森林防...
基于智能化的建筑消防防火分隔技术研究
摘要:本文旨在探索建筑消防防火分隔技术的智能化发展路径,以应对当前建筑消防安全领域所面临的严峻挑战。首先,采用文献研究法,系统梳理国内外相关研究的进展与前沿动态;运用理论分析方法,深入探讨智能化技术在防火分隔场景中的应用机理与核心优势。研究...
物联网技术背景下智慧消防在建筑防火检查中的应用探讨
摘要:近年来,物联网技术迅速发展,推动了“智慧消防”从概念走向现实。本文立足物联网技术背景,重点探讨智慧消防在建筑防火检查中的具体应用。基于智慧消防系统架构模型,对智慧消防的基本概念进行概述;分解析物联网技术背景下,建筑防火检查中智慧消防系...
建筑机电工程中的消防系统控制技术应用研究
摘要:本文系统分析了火灾自动报警系统(FAS)与消防联动控制系统(FSCS)的核心架构与运行机制,重点研究了智能控制算法、多传感器信息融合技术以及基于BIM的管线设计与施工模拟在提高火灾探测准确性、响应速度及系统可靠性方面的应用。同时,通过...
电气线路故障火灾事故调查疑难点解析
摘要:电气线路故障引发的火灾,是目前各类火灾中发生频率最高、危害性最严重的事故类型之一。此类火灾的调查工作流程复杂,涉及电气原理、热效应、材料学以及环境因素等多学科知识。本文将从电气线路故障的形成机理、电气设备老化与设计缺陷、电气火灾调查中...
施工阶段建筑给排水与消防管线综合排布优化研究
摘要:在现代建筑工程中,给排水与消防管线的综合布置是影响施工质量与后期运行安全的关键环节。由于管线系统错综复杂、安装空间有限,施工中常出现管线交叉冲突、排水不畅、检修困难等问题。本文基于工程实际,系统分析管线综合布置的常见难点,并围绕排布原...
基于神经网络的智能火灾预警系统设计探讨
摘要:本文提出一种基于多传感器数据融合的火焰状态智能检测算法,并将其深度整合于环境、健康与安全(EHS)管理体系,旨在通过智能化技术实现对火灾风险的前瞻性防控。该算法以神经网络为框架,融合一氧化碳传感器、烟雾探测器及温度传感器的实时数据,对...
工业厂区给排水与消防系统设计研究
摘要:工业厂区的给排水与消防系统是保障生产运行、人员安全与环境稳定的核心基础设施,其设计质量直接关系工厂的生产效率、安全保障与可持续发展能力。当前,传统设计模式普遍存在用水效率低下、污水处理不达标、消防响应迟滞及系统适应性不足等突出问题,难...
基于图神经网络的森林火灾蔓延路径预测与阻隔策略优化探讨
摘要:本文提出一种基于图神经网络的森林火灾蔓延路径预测与阻隔策略优化方法。首先,分析森林火灾蔓延过程中所呈现的复杂网络特性,阐明图神经网络在捕捉空间依赖关系与拓扑结构方面的技术优势。在此基础上,构建融合地形、植被、气象等多源异构数据的图结构...

建筑防火

城市轨道交通车站建筑消防安全研究
摘要:城市轨道交通作为大众日常出行的主要交通方式,其消防安全直接关系社会和谐稳定与人民群众的生命财产安全。从轨道交通车站的实际运营环境来看,其往往具有人员密集、空间结构复杂、电气设备繁多等特点,这些客观条件带来了相应的技术挑战与安全隐患。因...
大型公共建筑施工阶段的防火安全管理探讨
摘要:大型公共建筑作为城市现代化的重要标志,其施工期间的防火安全管理直接关系人员安全、财产保障与社会稳定。本文立足我国现行消防安全法规体系,结合大型公共建筑工期长、结构复杂、作业交叉多等特点,深入分析施工阶段强化防火管理的必要性与面临的挑战...
轨道交通地下车站消防安全隐患及对策研究
摘要:随着我国城市化进程的不断加速,轨道交通系统在各大城市迅速发展。其中,地下车站因其空间封闭、结构复杂、人员密集等特点,面临着诸多特殊的消防安全挑战。为保障公众出行安全与城市稳定运行,系统识别并科学防控地下车站的消防安全风险具有重要意义。...
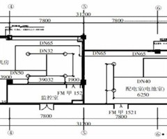
主机房与配电室气体灭火系统运行管理难点及对策研究
摘要:主机房与配电室气体灭火系统是保障关键设施安全运行的重要技术手段,其运行管理水平直接关系火灾防控的有效性。当前,该类系统在实际应用中普遍存在系统故障率高、误喷风险突出、人员安全意识与专业技能不足等问题,严重制约其功能发挥。为提升系统的可...
城市更新背景下张家港市老旧小区消防合规性改造实践路径研究
摘要:随着城市更新战略的持续推进,老旧小区改造已成为提升居民生活品质、保障民生安全的重要抓手。在此过程中,消防合规性改造尤为关键,对张家港等试点城市而言,其老旧小区消防安全隐患突出,系统化改造势在必行。本文立足张家港市实际,梳理当前老旧小区...
大空间公共建筑防火分区设计策略研究
摘要:大空间公共建筑因其结构复杂、功能多元、人员密集等特点,火灾防控面临严峻挑战。防火分区作为控制火势蔓延、保障人员安全疏散的核心手段,其设计不仅需遵循技术规范,还需统筹考虑建筑功能适配、结构边界完整性、各系统协同响应及长期运营管理等综合因...
地下建筑防火分区施工难点与对策研究
摘要:地下建筑由于结构封闭且空间形态复杂,在防火分区施工中存在较多技术挑战。本文从地下建筑防火分区的构造要求入手,系统梳理了结构布置复杂、材料选择受限、施工工艺难度大等常见技术难点。针对这些问题,提出了优化结构节点构造、改进耐火封堵技术、实...
建筑工程施工现场火灾事故的原因与防控策略研究
摘要:施工现场因其环境复杂、动态多变、危险源交织共存,历来是火灾事故的高风险区域。本文旨在系统剖析施工现场火灾事故的关键致因,重点探讨人的不安全行为、物的危险状态及管理缺陷等因素的耦合作用机制。在此基础上,从技术防控与管理体系两个维度,提出...

消防救援

高山复杂地形森林火灾扑救难点与应对策略研究
摘要:随着全球气候变化的不断加剧,高山复杂地形区域的森林火灾扑救难度日益增加,严重威胁着区域生态安全。本文深入分析了该类地区森林火灾扑救面临的四大核心难题,即受地形遮挡与通信条件限制,火情侦察精度较低;因交通不便与垂直运输能力不足,人员与装...
大跨度空间建筑火灾扑救技术与消防装备配置策略研究
摘要:大跨度空间建筑因其结构复杂、体量巨大、功能复合等特点,一旦发生火灾,蔓延速度快、扑救难度高,极易引发重大人员伤亡与财产损失。传统的灭火技术与装备配置难以适应其空间尺度和火灾发展特性,亟须建立科学、高效的应对体系。本文聚焦大跨度空间建筑...
高层住宅建筑避难层功能优化与消防救援协同策略研究
摘要:高层住宅建筑避难层作为火灾等紧急情况下保障人员安全的核心设施,具有不可替代的重要作用。本文系统分析了避难层在紧急避难、疏散中转及救援指挥等方面的功能,深入探讨了当前普遍存在的空间利用不合理、设施维护不到位、功能设计单一等问题。在此基础...
地铁隧道火灾应急照明与疏散指示系统在救援中的作用研究
摘要:随着城市化进程的不断加速,地铁作为大运量公共交通的骨干系统,其运营安全已成为城市公共安全的核心组成部分。地铁隧道空间封闭、通风条件受限,一旦发生火灾,高温、浓烟及有毒气体会沿隧道迅速蔓延,不仅严重威胁乘客和工作人员的生命安全,还给应急...
剧毒化工装置泄漏事故 治安保卫协同与消防应急预案处置探讨
摘要:剧毒化工装置泄漏事故因其扩散迅速、致死剂量低、处置时间紧迫等特点,单一部门往往难以迅速、有效应对。针对这一问题,本文构建了一套以事故阶段为主线、融合消防应急与安全保卫的协同处置分析框架。该框架通过情景推演与综合演练,对报警确认、警戒封...
消防灭火救援行动紧急避险及安全防护措施研究
摘要:消防灭火救援行动常面临复杂且高危的恶劣环境,要求消防救援人员在准确判断作战阵地与操作区域安全性的基础上,提前部署应急方案,以兼顾救援效率与自身安全。本文对灭火救援行动中面临的主要风险进行简要分析,从战术选择、撤离通道设置、团队协同三个...

消防监管

智能化技术在防火监督检查中的应用路径与发展研究
摘要:防火监督检查作为消防安全管理体系的核心构成部分,其流程复杂且涉及环节众多,这为智能化技术的引入与应用创造了重要空间。消防监督部门应充分认识智能化技术在提升工作效能、推动管理模式革新方面的显著优势,系统推进相关技术在防火监督检查中的深度...
关于消防改革后防火监督管理工作的思考
摘要:在消防体制改革后,防火监督管理工作面临职责体系重塑与风险形态叠加的双重挑战,其重要性愈发凸显,智能化、精准化已成为其必然的发展趋势。本文立足城镇化快速发展背景,梳理改革对防火监督管理职责、机制及方式带来的影响,结合数字化技术应用、制度...
人工智能赋能下消防监督效率提升路径研究
摘要:随着城市化进程的加快,社会对消防安全的要求不断提升,亟须构建更高效、精准的消防监督体系以保障城市安全。传统消防监督模式存在人力投入大、响应滞后、精准度不足等问题。人工智能技术包括大数据分析、机器学习和图像识别等,为消防监督带来了新的技...
消防防火监督检查中的隐患排查与整改路径研究
摘要:消防安全是维护社会公共安全与人民群众生命财产安全的重要基石。消防监督检查工作通过系统开展隐患排查与督促整改,对预防和减少火灾事故具有关键作用。本文聚焦消防监督检查中的隐患排查与整改实施路径,分析当前的常见问题与改进方向,以期为提升监督...
物联网技术在消防设施远程监控系统中的集成应用研究
摘要:在智慧城市与数字化应急管理快速发展的背景下,传统消防设施监控方式存在信息孤岛、响应滞后、管理效率低等问题,难以满足现代城市火灾防控需求。物联网技术具备感知全面、传输实时、处理智能等优势,为消防设施远程监控系统建设提供了新的技术路径。本...
人工智能在消防监督管理中的应用探讨
摘要:城市火灾风险日趋复杂,传统依赖“人工巡查 + 纸质台账”的监管模式已难以满足时效性与精准性的要求。本文在梳理国内多地试点实践的基础上,对人工智能技术在消防监督管理中的应用现状进行系统评估。分析发现,由于存在数据标准缺失、特殊场景样本不...
水利水电工程施工阶段防火监测技术研究
摘要:在水利水电工程施工过程中,火灾风险较为突出,临时用电、动火作业、可燃材料堆放以及复杂环境等因素均可能诱发安全事故,防火监测任务十分紧迫。当前监测手段仍主要依赖人工巡查,存在信息孤立、响应滞后、应急协同不足等问题,难以满足复杂多变的施工...

理论研究

碳纤维增强复合材料在建筑结构中的防火性能及热稳定性分析
摘要;碳纤维增强复合材料以其卓越的比强度和优异的耐腐蚀性能,在建筑结构中的应用日趋广泛。然而,其聚合物基体的可燃性以及在高温环境下显著的性能退化问题,也引发了对其防火安全性能的广泛关注。本文系统地分析了该材料在建筑应用中的防火性能与热稳定性...
土建施工现场消防与临时用水系统探讨
摘要:土建施工现场的消防与临时用水系统是保障工程安全、支撑施工顺利进行的关键基础设施。其合理设计与高效管理,对降低火灾风险、维持正常作业秩序具有至关重要的作用。本文系统梳理了施工现场消防与临时用水系统的构成与布局特点,分析了其在风险防控、资...
土木工程施工现场消防风险识别与防范措施探讨
摘要:土木工程施工现场消防风险具有复杂性与动态性,主要表现为风险来源多元、管理环节交错。本文从施工工艺、空间布局及管理体系三个维度系统识别风险因素,并剖析其背后存在的安全意识薄弱、责任界定不清、制度执行不力等现实问题。在此基础上,从源头预防...
VR技术在消防应急救援专业学生心理素质训练中的应用研究
摘要:将VR技术应用于消防应急救援专业学生的心理素质训练,对提高其在高压高危环境下的救援综合能力具有重要的现实意义。本文阐述了VR技术在心理素质训练中的优势,包括能有效贴合职业需求、突破传统训练局限以及促进多学科交叉融合,进而分析当前该技术...
市政给排水管网消防供水保障机制探讨
摘要:市政给排水管网是城市消防供水系统的重要物理依托,其运行可靠性直接关系公共安全与灾害防控效能。伴随城市化进程的持续加速和极端气候事件频发,传统消防供水体系在水源保障、设施运维、应急响应等方面面临系统性挑战。因此,构建科学、可靠的消防供水...
高性能混凝土在高温下的力学性能退化机制及防火设计优化研究
摘要:在现代建筑中,高性能混凝土得到广泛应用,其高温环境下的力学性能退化规律与相应的防火设计优化,是确保结构安全与耐久性的关键问题。本文系统梳理了高性能混凝土的材料特性与微观结构特征,深入探讨了其在高温条件下力学性能的退化规律与内在机理,并...
融合AI(人工智能)与Pathfinder的消防工程本科毕业设计教学模式研究
摘要:随着国家和社会对消防工程专业人才的需求趋于专业化、多元化,高校消防工程专业教学模式也需要不断更新。本文以消防工程专业的毕业设计教学为例,提出一种融合AI与Pathfinder的“多模态AI智能体 + 教师”双元协同的毕业设计动态仿真教...
建筑工程防火施工管理存在的问题及对策研究
摘要:本文从责任体系、技术措施、人员管理及监管机制等维度,系统剖析了当前建筑施工防火管理存在的问题根源,并提出完善消防责任链条、强化技术设施配置、深化全员教育培训、引入信息化动态监测以及创新协同监管模式等综合对策。研究表明,只有坚持制度刚性...
懒人吹风机在家庭消防安全管理中的应用研究
摘要:本文聚焦懒人吹风机在家庭消防安全管理中的潜在价值,系统分析了传统吹风机常见的安全隐患,包括高温过热引燃周边可燃物、设备老化与电路设计缺陷以及在不适宜的环境中使用等问题。在此基础上,详细阐述了近年来吹风机安全技术的演进,如智能温控与自动...
新疆高职院校消防救援技术专业标准化管理创新研究
摘要:新疆地域广袤、气候干旱,化工与能源产业密集分布,使火灾防控与应急救援工作面临高火险环境、危化品泄漏风险以及极端自然环境救援等多重特殊挑战。在此背景下,高职院校的消防救援技术专业承载着培养满足本地需求、适应实战要求的应急救援人才的关键使...
相关杂志
  • 科学24小时

    科学24小时

    2026年03期
    ¥3.69
  • 知识就是力量

    知识就是力量

    2026年01期
    ¥8.89
  • 环球人文地理

    环球人文地理

    2026年01期
    ¥15.00
  • 知识窗·上半月

    知识窗·上半月

    2026年01期
    ¥4.89
  • 大众科学

    大众科学

    2024年24期
    ¥6.00
  • 百科探秘·航空航天

    百科探秘·航空航天

    2026年02期
    ¥6.00
  • 科学大观园

    科学大观园

    2026年06期
    ¥9.69
  • 百科知识

    百科知识

    2026年04期
    ¥4.29
  • 军事文摘·科学少年

    军事文摘·科学少年

    2026年02期
    ¥4.89
  • 布达拉

    布达拉

    2025年12期
    ¥4.89
  • 廉政瞭望·下半月

    廉政瞭望·下半月

    2026年02期
    ¥6.00
  • 湖北经济学院学报(人文社会科学版)

    湖北经济学院学报(人文社会科学版)

    2026年02期
    ¥6.00
订阅全年后,您可享受以下权益
①该本杂志即日起至未来1年内所有更新电子版杂志的使用权限;
②赠送该杂志的部分往期的杂志的使用权限,有效期1年。

全年订购价格: ¥504.00

订阅全年
--%>

登录龙源期刊网

温馨提示:

1.点击网站右上角的“充值”按钮可以为您的账号充值

2.充值金额可以选择30,50,100或500元

3.充值成功后即可购买网站上的任意杂志或文章

还没有龙源账户? 立即注册

购买杂志

消防界

杂志价格:¥21.00元

  • 微信扫码支付
  • 当前余额:100.00

购买杂志

消防界

杂志价格:¥21.00元

  • 微信扫码支付
  • 当前余额:¥100.00

    去充值
monitor
客服机器人