注册帐号丨忘记密码?
1.点击网站首页右上角的“充值”按钮可以为您的帐号充值
2.可选择不同档位的充值金额,充值后按篇按本计费
3.充值成功后即可购买网站上的任意文章或杂志的电子版
4.购买后文章、杂志可在个人中心的订阅/零买找到
5.登陆后可阅读免费专区的精彩内容
打开文本图片集
关键词:努瓦科特杜巴广场;王宫建筑群;文物修复;军事防御;宗教文化景观;尼泊尔地震;中国援助
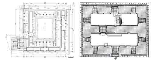
尼泊尔努瓦科特杜巴广场王宫建筑群(Nuwakot Palace Complex,以下简称“努瓦科特王宫建筑群”)主体建于18世纪,地处尼泊尔巴格马蒂地区努瓦科特县比德尔自治市的努瓦科特达尔巴古迹区,西北距首都加德满都约75千米(图1)。(剩余10255字)
登录龙源期刊网
购买文章
尼泊尔努瓦科特杜巴广场王宫建筑群选址与布局特征初探
文章价格:6.00元
当前余额:100.00
阅读
您目前是文章会员,阅读数共:0篇
剩余阅读数:0篇
阅读有效期:0001-1-1 0:00:00