注册帐号丨忘记密码?
1.点击网站首页右上角的“充值”按钮可以为您的帐号充值
2.可选择不同档位的充值金额,充值后按篇按本计费
3.充值成功后即可购买网站上的任意文章或杂志的电子版
4.购买后文章、杂志可在个人中心的订阅/零买找到
5.登陆后可阅读免费专区的精彩内容
打开文本图片集
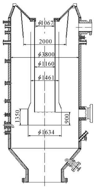
气流床气化炉在国内煤化工领域应用广泛,是煤化工生产的核心设备。多数气化炉通过直接水激冷方法对合成气进行冷却和润湿,这一过程发生剧烈的传热传质。激冷室的运行效率直接影响气化炉的稳定性、持续运行能力、生产负荷和生产效率。
此前,众多学者和行业专家对激冷室的传热、流动机制及运行管理进行了广泛的研究和分析。(剩余4172字)
登录龙源期刊网
购买文章
气化炉带水原因分析与新烧嘴测试实践
文章价格:4.00元
当前余额:100.00
阅读
您目前是文章会员,阅读数共:0篇
剩余阅读数:0篇
阅读有效期:0001/1/1 0:00:00