应用力学学报

应用力学学报

2025年06期
  • 收藏
收藏成功
微博 空间 微信
《应用力学学报》创刊于1984年,是由中华人民共和国教育部主管、西安交通大学主办的力学学术性刊物。本刊主要报道现代力学理...     展开

类型

双月刊

类别

定价
促销信息
全年订阅更优惠!
¥75.00 ¥45.00
目录

专家述评

超声速进气道内激波/边界层流动控制研究进展
薛瑞,教授,西安交通大学青年拔尖人才,获王宽诚青年学者,担任陕西省宇航学会理事。近年来,作为项目负责人、子课题负责人主持技术领域基金、国家自然科学基金面上项目及青年项目等国家级项目。以第一、通信作者在AIAAJournal、Combusti...
民机重着陆典型案例分析研究
DOI:10.11776/j. issn.1000-4939.2025.06.002张永杰,教授,博士生导师,副所长,结构副总师,客座研究员,专家,。入选重庆市、安徽省、黑龙江省、山西省、江西省、江苏省科技专家库专家,山西省通用航空产业联盟...

航空航天工程专栏

民用客机的振动传递路径试验及分析
摘要:随着民用客机设计技术的发展,当今客机设计的重点开始从结构安全性向客舱舒适性过渡,振动舒适性是其中的重点因素之一。从民机乘员振动舒适性角度出发,开展了某型客机在空中巡航、低空飞行、及跑道滑跑3种运行工况下的振动传递路径试验,基于试验数据...
基于模糊逻辑的航天器信息融合预见姿态控制
摘要:大挠性航天器所携带的大型挠性附件具有体积大和刚度低等特点,导致大挠性附件振动会严重影响航天器的姿态控制。对此,将模糊控制和信息融合预见控制结合,设计了基于模糊的信息融合预见姿态控制器。依据信息融合理论,通过融合航天器期望轨迹和动态方程...
基于灰色田口法的飞行器减阻降热研究与优化设计
摘要:高超声速飞行器在飞行过程中,面临着极高的气动阻力和加热作用,对飞行安全和稳定造成威胁。采用灰色田口法开展构型参数对高超声速飞行器减阻降热性能影响的研究,以减阻杆长径比、气道直径比、气动盘直径比、侧喷角为尺寸因子,飞行阻力、钝体峰值压力...

固体力学

四方蜂窝夹芯圆柱壳在径向压缩载荷作用下的力学行为研究
摘要:通过将金属薄壁管及蜂窝结构相结合,提出了一种四方蜂窝夹芯圆柱壳结构。通过实验以及有限元分析软件ABAQUS/Explicit研究了四方蜂窝夹芯圆柱壳在径向压缩载荷作用下的力学行为。通过对比验证了有限元模型的准确性,分析了结构在径向压缩...
圆锥形中空夹层钢管混凝土构件抗扭性能及承载力计算方法研究
摘要:面向大功率海上风电支撑结构抗扭承载力需求,研究了大空心率、大锥度和超限径厚比圆锥形中空夹层钢管混凝土(tapered concrete-filled double skin steel tubular,TCFDST)构件的扭转受力全过...
考虑裂变气体释放的高燃耗燃料颗粒动态开裂行为研究
摘要:陶瓷燃料在高燃耗条件下产生大量裂变气孔,气孔中的裂变气体释放至裂纹空腔对裂纹扩展行为具有较大的影响。开发了一种变内压作用下的裂纹动态扩展模型,实现了裂纹空腔内压与裂纹扩展过程相互耦合作用的动态开裂技术。内压大小随裂纹扩展而变化,同时开...
骨料不规则程度对混凝土单轴受压性能影响的数值研究
摘要:为了在细观层面上研究骨料不规则程度对混凝土力学性能及破坏形态的影响,采用Python程序二次开发了ABAQUS生成尖锐程度不同的随机分布骨料模型,分别建立零厚度cohesive 单元与可变厚度的实体界面过渡区(interface tr...
第一性原理研究Re和Ru掺杂含量对Ni-Al二元模型镍基单晶高温合金稳定性的影响
摘要:采用第一性原理计算,研究了掺杂元素(Re,Ru)含量对 Ni-Al二元模型单晶高温合金稳定性和占位倾向的影响。结果表明,随着Re和Ru元素含量的增加,体系的总能量逐渐降低,说明体系的稳定性得到了提高。同时,使用Ru替换Ni的体系的稳定...
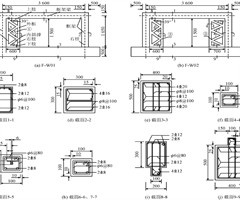
RC框架-框桁式复合墙抗震性能试验研究及有限元分析
摘要:为了提高钢筋混凝土(reinforced concrete,RC)框架的抗侧能力,提出RC框架-框桁式复合墙(frame trusscomposite wall,FTCW)结构,并对2个缩尺比例为1:2的RC 框架-FTCW 试件进行...
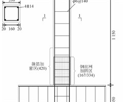
埋人式钢丝网增强混凝土柱的抗震性能研究
摘要:为增强钢筋混凝土柱的抗震性能,提出了埋入钢丝网增强混凝土柱的方法。设计浇筑了1个钢筋混凝土柱、4个钢丝网增强柱和1个箍筋加密柱共计6个试件,对试件施加了恒定轴向压力并实施了水平拟静力循环往复荷载,测试了各试件的破坏形态、裂缝分布、滞回...
考虑剪切效应的钢筋混凝土纤维梁单元徐变分析方法
摘要:基于Euler-Bernoulli梁理论的经典纤维模型忽略了剪切变形给截面带来的影响,为了建立更加精确的钢筋混凝土纤维梁单元徐变分析方法,基于考虑剪切效应的纤维梁单元,根据Timosh-enko 梁理论,推导了该纤维梁单元的刚度矩阵,...
黄土与土工格栅界面剪切力学特性研究
摘要:为探究黄土与土工合成材料界面的力学特性,对加筋黄土工程设计提出针对性建议,本研究采用大型结构面剪切仪开展土工格栅-黄土界面直剪试验,研究黄土含水率和压实度对筋土界面剪应力-剪切位移关系、抗剪强度指标和剪切带厚度的影响,分析其机理,并探...

动力学与控制

基于磁流变技术的三线圈抗蛇行减振器设计与性能研究
摘要:现有高速列车所用的抗蛇行减振器为被动式的油压减振器,其阻尼特性无法根据车辆服役状态和运行环境的变化而调整,使车辆的平顺性和稳定性无法适应车况和环境的变化。基于磁流变技术的半主动式减振器结合智能控制技术可以解决这一难题。本研究根据高速列...
单轴压缩下含双圆孔类岩石材料破坏机理研究
摘要:为深入认识双圆形孔洞对岩石的力学特性及裂纹扩展过程的影响,采用颗粒流程序 PFC2D构建了含双圆孔类岩石试样的单轴压缩模型,根据试验和模拟得到的宏观力学参数的对比验证了数值模型的正确性和合理性。然后,对含双圆孔试样的裂纹扩展过程以及圆...
基于内聚力模型的新旧混凝土粗糙界面剪切性能仿真分析
摘要:新旧混凝土界面粗糙程度是影响其剪切性能的关键因素之一。本研究基于分形理论,表征与量化了新旧混凝土界面的粗糙度,并采用蒙特卡罗方法和骨料级配理论,建立了不同分形维数界面的新旧混凝土随机骨料几何模型。通过局部嵌入零厚度内聚力单元模拟粗糙界...
考虑剪切变形及界面滑移的双倒T型组合梁理论模型
摘要:在钢混组合结构中,由于存在一定的界面滑移及腹板剪切变形,平截面假定不再适用。为科学研究剪切变形及界面滑移对组合梁挠度及界面滑移的影响,通过Goodman假定和Timoshenko梁双广义位移假定,引入组合梁的应变关系和单元微段力学平衡...
应变梯度高阶剪切变形微板的自由振动特性研究
摘要:基于修正的应变梯度理论和精化高阶剪切变形理论,建立了包含3个材料尺度参数和2个位移场变量的矩形微板自由振动模型,推导了对应的控制微分方程。利用Navier法获得了四边简支矩形微板自由振动的解析解。融合Gauss-Lobatto求积准则...
柔性腿无缘轮被动动态行走器建模与分析
摘要:研究柔性腿无缘轮被动动态行走器建模,并分析阻尼系数对系统动力学的影响。根据行走器的几何特征,选择独立广义坐标描述系统的位置,使用第二类拉格朗日方程建立柔性腿无缘轮被动动态行走器的动力学模型。对柔性腿的结构和物理性质进行分析,得到腿与地...
瞬态入渗下圆台形基坑主动土压力的滑移线解答
摘要:为描述瞬态入渗下圆台形基坑主动土压力沿深度的分布规律,基于非饱和土的广义有效应力强度公式和瞬态入渗下的基质吸力,建立了圆台形基坑主动土压力的滑移线方程,继而采用差分迭代法获得了瞬态入渗下非饱和土圆台形基坑主动土压力的滑移线解答,最后对...

生物力学

扁平足业余跑步爱好者不同运动表面跑步的足底压力特征分析
摘要:目的探究扁平足业余跑步爱好者在不同运动表面跑步时的足底压力特征。方法选取15名经足印法和Novelemed 3D足底扫描仪确诊的扁平足业余跑者(足弓指数 ?0.6 )及15名正常足对照者,使用Pedar-X1.0足底压力测试系统,在...
CS-FEM在膝关节有限元模型中的应用
摘要:目的 通过使用光滑有限元法(cell-based smoothed finite element method,CS-FEM)来提高膝关节有限元模型中网格的质量与效率。方法在传统有限元法的基础上引入梯度光滑技术,采用基于单元的光滑有限...
相关杂志
订阅全年后,您可享受以下权益
①该本杂志即日起至未来1年内所有更新电子版杂志的使用权限;
②赠送该杂志的部分往期的杂志的使用权限,有效期1年。

全年订购价格: ¥270.00

订阅全年
--%>

登录龙源期刊网

温馨提示:

1.点击网站右上角的“充值”按钮可以为您的账号充值

2.充值金额可以选择30,50,100或500元

3.充值成功后即可购买网站上的任意杂志或文章

还没有龙源账户? 立即注册

购买杂志

应用力学学报

杂志价格:¥45.00元

  • 微信扫码支付
  • 当前余额:100.00

购买杂志

应用力学学报

杂志价格:¥45.00元

  • 微信扫码支付
  • 当前余额:¥100.00

    去充值
monitor
客服机器人