土木与环境工程学报(中英文)

土木与环境工程学报(中英文)

2026年01期
  • 收藏
收藏成功
微博 空间 微信
"《土木建筑与环境工程》是重庆大学主办的建筑工程类学术期刊(双月刊),主要反映土木工程、市政与环境工程、暖通工...     展开

类型

双月刊

类别

学术
定价
促销信息
全年订阅更优惠!
¥15.00 ¥9.00
目录

土木工程

基于数值模拟和机器学习的异形盾构隧道抗隆起性能研究
摘要:覆土盾构隧道的土壤抗浮力对其防浮稳定性有重要影响,目前关于异形盾构隧道的抗浮研究还比较有限。采用数值模拟结合机器学习研究异形盾构隧道的抗浮特性,总结异形盾构隧道的几何形态,引入形状系数,利用Plaxis3D有限元软件,开展形状系数、埋...
非贯通双节理砂质板岩加卸荷力学特性及裂纹扩展机制
摘要:在地下洞室开挖卸荷过程中,节理岩体的力学特性和裂纹扩展行为对工程安全和稳定至关重要。以四川卡拉水电站地下厂房节理砂质板岩为研究对象,开展完整和非贯通节理砂质板岩三轴加载与卸荷试验,分析加载和卸荷路径下砂质板岩的力学与变形特性,探讨不同...
中国西北地区生态型土质覆盖层厚度设计简化方法
摘要:中国现行规范借鉴北美非湿润地区生态型土质覆盖层厚度设计方法,采用6个经验公式对西北地区生态型土质覆盖层的厚度进行设计,但该方法涉及的参数较多、计算过程繁琐,最重要的是忽略了中国西北地区季风气候与北美非湿润地区湿冷气候对覆盖层厚度的不同...
GeoStudio与FLAC3D互馈的库岸滑坡多场信息模拟方法
摘要:准确获取库岸滑坡在动水作用下的多场信息是可靠评价滑坡稳定性的重要基础。为克服GeoStudio和FLAC3D数值软件在模拟库岸滑坡多场信息上的限制,提出一种GeoStudio与FLAC3D互馈的库岸滑坡多场信息模拟方法。该方法首先通过...
多孔介质中角膜-液桥流对毛管压力曲线的影响
摘要:毛管压力曲线是模拟孔隙介质非饱和渗流或水-气多相渗流过程的重要本构关系。当湿润相饱和度趋近残余饱和度时,固相颗粒之间形成的角膜和液桥是流体进行驱排过程的主要方式,目前,有关角膜和液桥对毛管压力曲线的影响机制研究还不够深入。搭建微流控可...
羟丙基甲基纤维素改性珊瑚泥龟裂特性试验研究
摘要:为实现岛礁珊瑚泥的有效利用,对岛礁珊瑚泥性能进行研究,发现岛礁珊瑚泥作为工程材料利用时存在龟裂现象,因此,对珊瑚泥进行龟裂研究及改性研究具有现实意义。引入羟丙基甲基纤维素(HPMC)与珊瑚泥制备室内面层模型,进行龟裂试验,在不同时段对...
强夯砂土地基振动衰减规律及减振沟参数的影响
摘要:强夯是地基处理中广泛采用的方法,但其产生的振动可能会对周围既有建筑物造成损害,因此,需根据特定场地情况和振动衰减规律来确定安全距离和采取减振措施。以福州长乐国际机场强夯地基处理为背景,通过强夯试验获取现场数据,并进行离散元程序模拟。模...
大厚度人工填土地基中桩基的水平承载特性
摘要:为探究大厚度人工填土地基桩基水平承载特性及m法在实际工程中的适用性,进行了单桩水平承载现场试验与m法理论计算,得到了桩基在水平荷载作用下的位移和弯矩变化规律、水平荷载作用下的桩-土变形规律,并进一步得到了地基土水平抗力系数的比例系数 ...
大直径桥梁能量桩传热特性现场试验和数值模拟研究
摘要:针对大直径桥梁能量桩的传热特性,通过现场试验测试了其热交换率与桩土温度场分布,建立大直径桥梁能量桩的三维数值模型,并将数值模拟结果与现场实测数据进行对比,验证所建模型的合理性。基于验证后的模型开展参数敏感性分析,探究桥梁桩基上方桥墩与...
软土深基坑分区开挖变形规律
摘要:以杭州新世界望江新城4号深基坑工程为例,全面监测基坑的分区开挖过程。通过对地连墙变形、土体侧移、墙顶沉降以及坑外土体沉降等监测数据的深入分析,结合PLAXIS3D有限元软件建立基坑分区开挖数值模型,对比数值模拟结果与实际监测数据,验证...
膨润土防水毯搭接对复合垂直防渗墙防渗性能的影响
摘要:膨润土防水毯(geosynthetic clay liners,GCL)复合垂直防渗墙是由水泥-膨润土泥浆墙和膨润土防水毯组成的新型竖向防渗阻污墙,施工中GCL的搭接宽度和搭接区处理效果是影响复合垂直防渗墙防渗阻污性能的重要因素。通过...
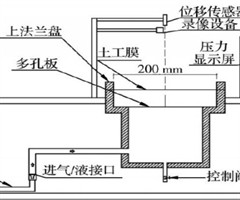
加载介质对HDPE土工膜鼓胀变形力学性质的影响
摘要:为研究加载介质对土工膜鼓胀变形力学性质的影响,选择 0.2、0.3、0.6mm 三种厚度的HDPE土工膜为研究对象,使用鼓胀变形专用试验设备,分别以气体和液体作为加载介质,在1kPa/s 的注入速率下开展环形约束下的球形鼓胀变形试验,...
再生混凝土骨料与土工格栅的界面剪切特性
摘要:随着经济的持续发展和城市规模的不断扩大,建筑垃圾的资源化和再生利用势在必行,作为建筑垃圾筛分破碎后的产物,再生混凝土骨料有着广阔的应用前景。以4种不同粒径范围的再生混凝土骨料为研究对象,引入孔径比概念,通过室内大型直剪试验,系统研究了...
RC框架结构梁柱节点的轴力变化规律及加载制度
摘要:钢筋混凝土(RC)梁柱节点的抗震性能一般是基于定轴力加载试验获得。由于缺乏有依据的变轴力加载制度,仅少数RC节点抗震性能试验研究考虑了变轴力的影响,且均假定轴力按简化的线性规律变化,难以反映水平地震作用下RC框架结构梁柱节点的真实受力...
带肋超高性能混凝土与普通混凝土结合面剪切性能
摘要:为研究超高性能混凝土(UHPC)与普通混凝土(NC)的界面剪切性能,设计并制作13个UHPC-NC直剪试件,通过推出试验研究UHPC肋条宽度、高度以及间距对界面破坏模式和抗剪承载力的影响。基于ABAQUS建立UHPC-NC试件的有限元...
聚丙烯网-复合水泥砂浆加固村镇建筑开洞砌体墙的抗震性能
摘要:村镇建筑中砌体结构缺少必要的抗震措施,抗震能力偏低,采用聚丙烯网-复合水泥砂浆对墙体进行加固能提高建筑的抗震能力。为研究开洞砌体墙加固后的抗震性能,设计制作了3榀开洞墙体模型试件进行拟静力试验,得到模型试件的滞回曲线及骨架曲线。采用A...
纤维编织网复合嵌入式预应力碳纤维筋 加固RC梁的抗弯性能
摘要:为研究纤维编织网增强水泥基材料(textile reinforced concrete,TRC)复合嵌入式预应力碳纤维增强聚合物筋(carbon fiber reinforced polymer,CFRP)加固钢筋混凝土梁(reinf...
基于点云数据和启发式算法的复杂龙骨-面板结构智能数字化施工方法
摘要:大型复杂龙骨-面板结构建造过程中,龙骨发生弯曲且扭转,影响面板安装;传统面板深化设计过程存在效率不高、智能化程度低等缺点。以广州南沙国际金融论坛会址为工程背景,开展基于点云数据和启发式算法的大型复杂龙骨-面板结构智能建造技术研究:针对...
环向布筋下3D打印钢纤维混凝土圆弧拱结构的承载性能
摘要:为增强3D打印混凝土圆弧拱结构的受力性能,采用掺入钢纤维与配置钢筋的方法,考察环向布筋对3D打印钢纤维混凝土拱结构力学性能的影响。通过不同钢纤维掺量下的力学性能试验确定合适掺量,在此基础上设计两组3D打印混凝土圆弧拱结构,通过在拱顶施...
轨道交通钢弹簧隔振器损伤参数对动力响应的影响
摘要:城市轨道交通结构中,弹簧隔振器在疲劳作用下会出现刚度减小、损伤和吊空现象,作为隐蔽部件,其损伤很难被巡检发现。严重的弹簧隔振器损伤或连续数量较大的隔振器损伤将影响行车安全,但目前对轨道支承结构的研究主要针对扣件和轨枕,对钢弹簧的研究较...

环境工程

淋滤作用下固化石油污染土的力学性能及污染物迁移演变历程
摘要:厘清环境效应下固化石油污染土的力学性能及污染物迁移扩散演变历程是推进污染土工程再利用的关键前提。选择石灰和粉煤灰为固化材料,结合淋滤试验和COMSOLMultiphysics软件模拟,通过滤后界面含油量分布评价淋滤环境下固化作用对石油...
硫酸亚铁协同胶凝材料固化填埋场市政污泥试验研究
摘要:为解决填埋场扩容扩建工程中市政污泥含水率高、强度低的问题,提出硫酸亚铁协同胶凝材料(石灰、粉煤灰和水泥)原位固化填埋污泥的方法,并采用响应面法对该协同固化方法的药剂掺量进行优化。以养护28d后固化污泥的含水率、无侧限抗压强度(UCS)...
大足石刻千手观音金箔表面微生物群落结构及优势种鉴定
摘要:大足石刻千手观音集石雕、彩绘、贴金于一体,是中国现存最大、最完整的千手观音摩崖造像。近年来的持续跟踪监测发现,造像表面金箔出现了变色、开裂、脱落等劣化现象,现有研究主要关注环境理化因素和材料特性对金箔腐蚀的影响,却忽略了微生物的影响。...
河流微生物产甲烷研究进展
摘要:甲烷( CH4 )是主要温室气体之一,其对全球气候变化产生重要影响。河流是产甲烷的重要场所,而河流环境的复杂性使得采用传统方法难以有效开展对河流微生物产甲烷的深入研究。综述产甲烷微生物的基本分类、在环境中的分布、甲烷产生的氢营养代谢途...
相关杂志
  • 中国商论

    中国商论

    2026年04期
    ¥17.49
  • 中外建筑

    中外建筑

    2026年01期
    ¥9.90
  • 河南科技

    河南科技

    2026年02期
    ¥6.00
  • 海洋开发与管理

    海洋开发与管理

    2025年10期
    ¥21.69
  • 计算机应用文摘

    计算机应用文摘

    2026年04期
    ¥9.00
  • 社会科学研究

    社会科学研究

    2026年01期
    ¥9.00
  • 现代信息科技

    现代信息科技

    2026年04期
    ¥18.00
  • 湖南大学学报(社会科学版)

    湖南大学学报(社会科学版)

    2025年06期
    ¥12.00
  • 中国调味品

    中国调味品

    2026年02期
    ¥0.00
  • 计算技术与自动化

    计算技术与自动化

    2025年04期
    ¥10.89
  • 民主与科学

    民主与科学

    2025年06期
    ¥3.39
  • 智库理论与实践

    智库理论与实践

    2026年01期
    ¥90.00
订阅全年后,您可享受以下权益
①该本杂志即日起至未来1年内所有更新电子版杂志的使用权限;
②赠送该杂志的部分往期的杂志的使用权限,有效期1年。

全年订购价格: ¥54.00

订阅全年
--%>

登录龙源期刊网

温馨提示:

1.点击网站右上角的“充值”按钮可以为您的账号充值

2.充值金额可以选择30,50,100或500元

3.充值成功后即可购买网站上的任意杂志或文章

还没有龙源账户? 立即注册

购买杂志

土木与环境工程学报(中英文)

杂志价格:¥9.00元

  • 微信扫码支付
  • 当前余额:100.00

购买杂志

土木与环境工程学报(中英文)

杂志价格:¥9.00元

  • 微信扫码支付
  • 当前余额:¥100.00

    去充值
monitor
客服机器人