水利水电快报

水利水电快报

2026年01期
  • 收藏
收藏成功
微博 空间 微信
《水利水电快报》创办于1980年,是由水利部主管,长江水利委员会主办的水利水电类综合性科技期刊,国内外公开发行。[1]

类型

月刊

类别

文化综合
定价
促销信息
全年订阅更优惠!
¥8.00 ¥10.80
目录

现代化水网建设专栏

基于RBFNN-RF的南水北调中线总干渠冰情预测模型
摘要:为提升南水北调中线总干渠冰期输水能力,实现在保障冰期安全运行前提下尽可能多供水的目标,精准预测总干渠冰情有重要意义。利用南水北调中线工程通水以来的冰情原型观测数据,应用径向基神经网络(RBFNN)建立了当日平均水温、次日最高和最低气温...
滇中引水工程水资源管理研究
摘要:为缓解滇中地区水资源短缺与经济社会发展矛盾,分析了滇中地区水资源现状与挑战,并介绍了滇中引水工程概况及其在水资源管理中发挥的作用。结果表明:滇中引水工程引入NSGA-I多目标优化配置模型,其与动态调整机制可最大化满足各用水主体整体效益...
一闸三线”工程受水区水资源多目标优化配置模型
摘要:福建省平潭及闽江口水资源配置(简称“一闸三线”)工程实施后,受水区水资源多目标需求存在复杂竞争协调关系。为了揭示发电、供水与生态三者间的竞争协调机理,并建立其定量转换关系,针对大樟溪流域内龙湘水库与莒口水库构成的梯级水库系统,利用NS...
引调水工程勘察设计数字孪生平台关键技术与应用
摘要:针对引调水工程勘察设计平台面临的数据承载量大、岩性识别效率低、线路比选分析难等问题,提出了引调水工程勘察设计数字孪生平台架构设计方法,包括 GIS+BIM 多源数据融合、基于岩石图像的岩性智能识别、高保真云渲染、基于空间分析的线路比选...

水文水资源

基于雷达产品的陆水流域致洪暴雨监测预报
摘要:陆水流域具有汇流时间短、洪水突发性强等特点,高时空分辨率的雷达资料对该流域暴雨监测预报至关重要。以2024年7月1日陆水流域致洪暴雨为例,在定量降雨预报中使用反射率因子(CR)、强回波厚度(CAPPI)、垂直液态水含量(VIL)等雷达...
贵州省水资源利用与产业发展协调关系研究
摘要:为探索长江经济带上游山区水资源利用与产业发展的关系,推进二者协调可持续发展,以贵州省为研究区,采用综合赋权法、线性加权法、耦合协调模型和相对发展模型分析 2004~2023 年水资源利用与产业发展之间的相互关系及变化趋势。结果表明: ...
安徽省水资源空间均衡性评价分析
摘要:为分析安徽省水资源空间分布的不均衡性,利用水资源负载指数、水土资源匹配系数以及用水效益指标构造评价体系,通过集对分析方法与引力模型,耦合计算 2014~2018 年安徽省16个地级市的绝对联系强度值( (Pi) 与相对联系强度值 (N...

防灾减灾

贵州省台江县暴雨灾害风险评估与区划
摘要:为应对暴雨灾害,提高暴雨灾害防治能力,基于“致灾因子-孕灾环境-承灾体-防灾减灾能力”的灾害风险评估理论,利用层次分析法和自然断点法,结合贵州省台江县实际情况,选取了4个一级指标和17个二级指标,构建了暴雨灾害风险评估指标体系,并利用...

设计与施工

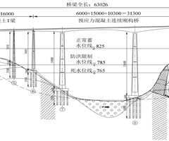
山区高墩大跨不对称连续刚构桥设计研究
摘要:为提高山区不对称连续刚结构桥梁的设计方案合理性,以白鹤滩水电站复建工程中黑水河高墩大跨不对称连续刚构桥为研究对象,介绍了桥梁的总体设计、上下部设计,并应用桥梁博士和Midas Civil有限元软件,系统开展了桥梁的静力计算分析、高墩稳...

环境与生态

中国近20年生态流量研究进展与热点分析
摘要:为了揭示中国生态流量研究的时空演进规律,为水资源可持续利用与生态文明建设提供科学支撑。分析了近20a国内生态流量研究热点与发展趋势,构建其科学知识图谱。通过在CNKI检索“生态流量”文献,结合CiteSpace绘制作者合作、机构合作、...
合肥市水资源生态足迹时空演变特征及影响因素分析
摘要:区域资源、环境和社会经济的发展都离不开水资源持续的供给支持,为助力区域水资源可持续利用与生态环境保护,以 2012~2021 年合肥市水资源公报为基础,分析合肥市水资源生态足迹和水资源生态承载力时空变化及其影响因素。结果表明: ① 研...
滇池最小生态需水量研究
摘要:为改善滇池水环境,基于受人类活动影响较小时的滇池流域水文特征,分析滇池在近似天然状况下的最小生态需水量。研究采用历年逐月经验频率法 90% 频率对应的水位作为湖泊最低生态水位,根据滇池水位-面积关系曲线,得到对应的滇池湖面面积为 29...
城市湖泊湾区生态系统特征及生态修复策略研究
摘要:湖泊湾区是城市湖泊承接污染物的前沿阵地,也是城市湖泊生态环境改善的关键环节。以长江中下游典型的浅水城市湖泊——武汉市汤逊湖为例,聚焦湖泊湾区这一典型的生态系统,通过深入了解湖泊湾区生态系统所处的状态、受干扰程度和演替方向,准确识别了湖...
三水统筹”下流域污染控制与生态修复理论及技术体系研究
摘要:为了研究“三水统筹”理念下流域污染控制与生态修复的理论与技术体系,构建污染溯源-风险评估-协同治理的创新路径。在“三水统筹”的研究背景下,分析流域污染来源并探讨污染风险评估方法。从污染控制的理论基础和关键技术两个方面,提出涵盖源头、过...
生态安全缓冲区技术在污水处理厂尾水深度处理中的研究应用
摘要:为减少入河污染物排放、促进水生态环境的良性循环,在对生态净化型安全缓冲区作用机理分析的基础上,考察了生态净化型安全缓冲区技术在南通某污水处理厂达标尾水深度处理的效果。结果表明:生态净化型安全缓冲区技术对城市污水处理厂尾水具有较好的处理...

试验与研究

基于CHLT的滑坡碎屑流运动距离试验研究
摘要:滑坡碎屑流灾害作为山区常见的地质灾害之一,其运动距离与对坡脚水利工程的损毁程度密切相关。为计算预测滑坡碎屑流运动距离,以2016年9月28日浙江遂昌苏村发生的滑坡碎屑流事件为例,设计了流域尺度降雨诱发滑坡碎屑流物理模型(CHLT模型)...
火山灰质材料对天然骨料碱-硅反应活性抑制效能研究
摘要:在西藏地区水电工程开发建设中,需密切关注骨料的潜在碱-硅反应活性检验及其抑制措施有效性。以西藏地区天然火山质材料和天然砂砾石为研究对象,基于岩相法和砂浆棒快速法,探讨了火山灰质材料对天然砂砾石骨料碱-硅反应膨胀率的影响,对比研究了单掺...

水利信息化

长江流域水利数据模型服务平台设计与实现
摘要:为提升长江流域综合调度能力,解决多目标、多约束的协同管理难题,避免数据孤岛与重复建设,设计并实现了长江流域水利数据模型服务平台。基于SpringCloud Alibaba框架,平台集成防洪、水量、生态等多领域数据与模型,实现了水利数据...
基于SD-WAN的长江水文智能骨干网络构建与优化
摘要:为解决长江水文现有骨干网络数据专线不能满足日益增长的数据传输需求问题,并适应长江流域全覆盖水监控系统建设需求,基于SD-WAN技术,提出符合长江水文实际的三级组网模型,融合异构链路实现统一纳管,设计全局智能调度、自适应流量管理与AI流...
基于数据引擎的地市水利数据整合应用
摘要:为提升地市水利数据质量与治理效率,以数字孪生、人工智能等技术为支撑,分析了伊犁哈萨克自治州水利数据整合过程中的业务需求与技术挑战。在此基础上,提出融合关系型数据库、非关系型数据库及数据湖技术的地市水利数据引擎架构,并对数据引擎进行应用...

博士论坛

岩质边坡裂隙扩展的模型实验与数值方法研究
中国西南地区剧烈的地质构造活动形成了众多节理裂隙发育、浅层地应力变化剧烈的高陡岩质边坡。随着西电东送、西气东送、南水北调(西线)、川藏铁路等重大工程在该地区的规划建设,岩质边坡既是路基、桥基等地面工程的承载体,又是隧道、桐室等地下工程的融载...

行业资讯

行业资讯
亚太地区未来水利资金缺口超4万亿美元 过去12年来,亚太地区已有27亿人的极端用水不安全状况得到了改善,这是该地区最重要的发展成就之一。但这一进展如今正面临风险挑战。亚洲开发银行(ADB)发布的《2025年亚洲水资源发展展望》(AWDO20...

学术概览

学术概览
气候变化背景下亚马孙水域极端升温研究2023年,受史无前例的干旱、热浪影响,亚马孙水域鱼类和淡水豚大规模死亡。对亚马孙水域10个典型湖泊的监测结果显示,5个湖泊的日间水温异常偏高(超过 37∘C ),其中一大型湖泊近 2m 深的水体水温高达...

成果推介

成果推介
流域水工程联合智能调度平台 成果概况 流域水工程联合智能调度平台由自主研发、独立完成。针对流域洪水防御、水资源优化配置及多水库运行中调度决策经验依赖性强、响应不够及时等问题,将数字孪生水利等信息技术与流域调度深度融合,构建平台技术框架,形成...
相关杂志
  • 读书

    读书

    2026年02期
    ¥9.00
  • 书屋

    书屋

    2026年02期
    ¥6.00
  • 天涯

    天涯

    2026年01期
    ¥12.00
  • 世界文化

    世界文化

    2023年12期
    ¥6.00
  • 博览群书

    博览群书

    2025年12期
    ¥12.60
  • 湘潮

    湘潮

    2025年10期
    ¥4.29
  • 寻根

    寻根

    2025年06期
    ¥9.00
  • 牡丹

    牡丹

    2026年02期
    ¥4.09
  • 党员生活·下

    党员生活·下

    2026年01期
    ¥4.89
  • 大理文化

    大理文化

    2026年03期
    ¥3.69
  • 金桥

    金桥

    2026年02期
    ¥9.69
  • 中国民族博览

    中国民族博览

    2025年23期
    ¥30.00
订阅全年后,您可享受以下权益
①该本杂志即日起至未来1年内所有更新电子版杂志的使用权限;
②赠送该杂志的部分往期的杂志的使用权限,有效期1年。

全年订购价格: ¥129.60

订阅全年
--%>

登录龙源期刊网

温馨提示:

1.点击网站右上角的“充值”按钮可以为您的账号充值

2.充值金额可以选择30,50,100或500元

3.充值成功后即可购买网站上的任意杂志或文章

还没有龙源账户? 立即注册

购买杂志

水利水电快报

杂志价格:¥10.80元

  • 微信扫码支付
  • 当前余额:100.00

购买杂志

水利水电快报

杂志价格:¥10.80元

  • 微信扫码支付
  • 当前余额:¥100.00

    去充值
monitor
客服机器人