土岩复合地层超深圆形基坑内衬墙作用效果及优化

打开文本图片集
摘要:
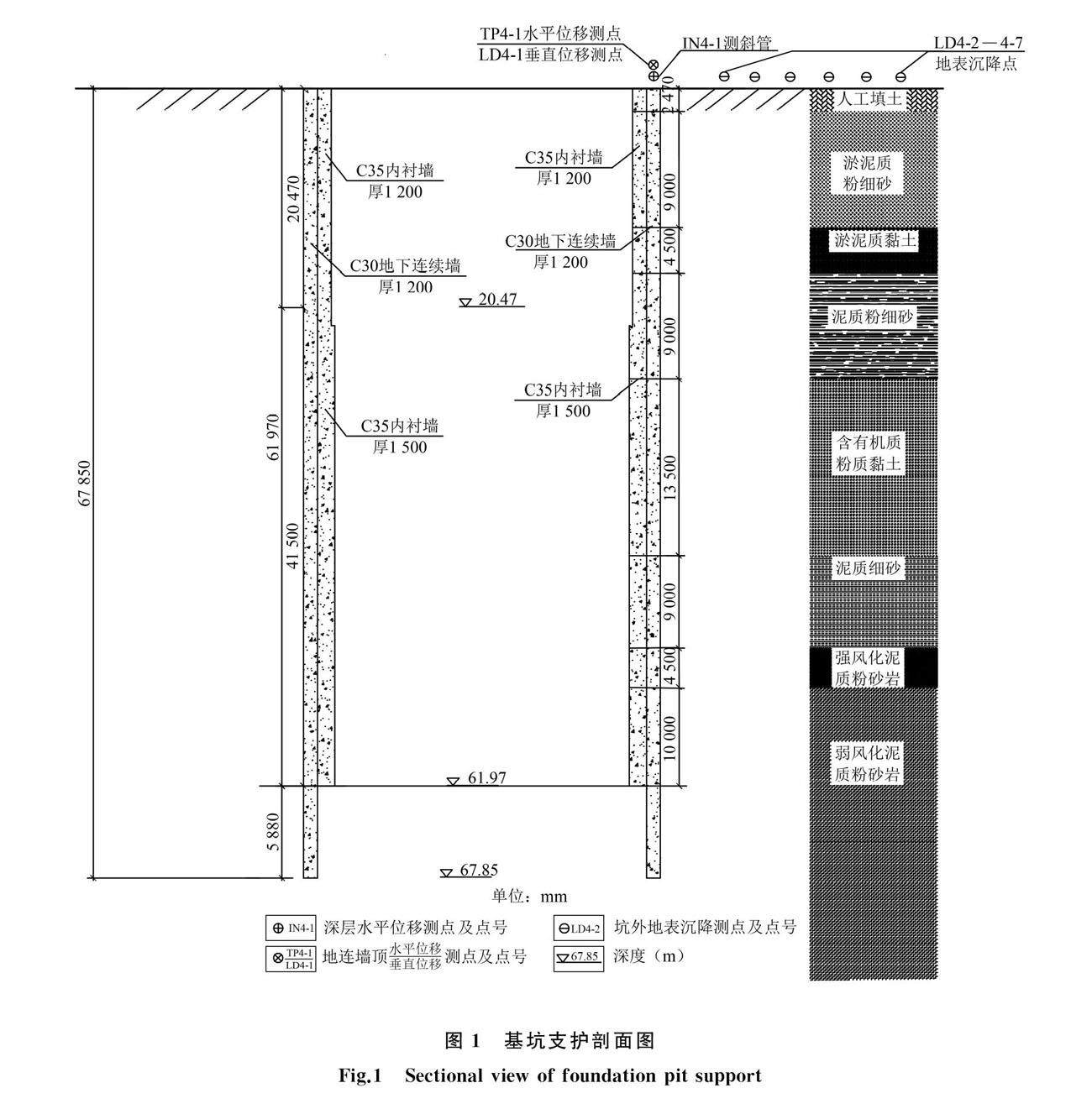
为选择合理的支护方案,满足复杂地层条件下基坑的安全稳定和高效施工,以佛山市某超深圆形基坑为研究背景,采用数值模拟及现场监测手段,对土岩复合地层内衬墙作用效果进行分析,并分别对内衬墙厚度、施工方法、内衬墙布置形式进行优化。研究表明:内衬墙对地连墙受力变形起有利作用;相比有内衬墙支护,无内衬墙支护时地连墙受力变形增加较多,但均未超过规范要求预警值,表明该复合地层内衬墙具有一定的优化空间;地连墙水平位移、地连墙环向应力、坑外地表沉降量最大值与内衬墙厚度呈负相关,内衬墙厚度减小至0.80~0.60 m之间时,地连墙水平位移及环向
应力作用效果减弱,内衬墙厚度减小至0.60~0.40 m之间时,坑
外地表沉降量作用效果有所减弱; 在最优厚度基础上,采用顺逆结合的施工方法既可保障基坑安全稳定,又可提高施工便利性。(剩余18575字)